立即预约 立即预约
免费定制整装家居

免费定制整装家居

一站置家 全程无忧 一省到底
hide.png

当前位置: 首页 > 装修案例效果图 > 保利天汇|现代极简

保利天汇|现代极简 134平 现代简约风格效果图

收藏
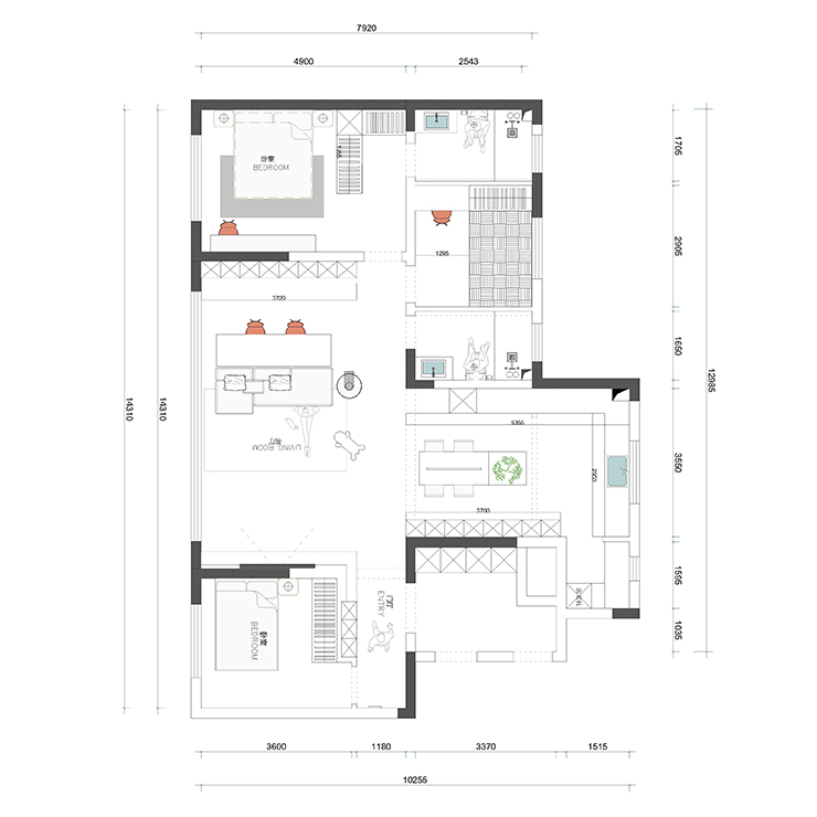
案例风格 现代简约 案例户型 三居 案例面积 134平米
楼盘名称 保利天汇 设计师 高阳 案例类型 改善性住宅

设计理念:本次家居设计以现代极简风格为主调,秉持“少即是多”的原则,通过简洁流畅的线条、纯粹的色彩搭配以及精致的材质运用,营造出时尚大气且舒适宜居的空间氛围。注重空间的合理规划与功能整合,满足居住者多样化的生活需求,同时强调自然光线与室内环境的融合,打造一个既能让人放松身心,又能彰显个性品味的居住空间。

高阳-保利天汇1-134平-多功能客厅.jpg 高阳-保利天汇1-134平-多功能客厅1.jpg 高阳-保利天汇1-134平-客厅.jpg

客厅设计开阔通透,大面积落地窗将充沛自然光引入,搭配轻薄的窗帘,可自由调节光线与隐私度,窗外景色也成为室内天然装饰。中性灰色调的整体墙面与地面,沉稳大气,为空间奠定基调。深灰的沙发质感柔软,搭配造型独特的绿色单人椅,为空间增添一抹灵动色彩。黑白花纹的大理石茶几,成为视觉焦点,提升空间精致感。一体化的收纳柜不仅满足收纳需求,还保持了空间的整洁统一。无主灯设计结合隐藏式灯带与筒灯,营造出温馨且有层次感的照明氛围。

高阳-保利天汇1-134平-餐厅1.jpg 高阳-保利天汇1-134平-餐厅.jpg 高阳-保利天汇1-134平-餐厅2.jpg 高阳-保利天汇1-134平-主卧1.jpg 高阳-保利天汇1-134平-主卧.jpg 高阳-保利天汇1-134平-次卧1.jpg

卧室设计追求简约与舒适,营造宁静温馨的休憩环境。浅米色的墙面搭配深色木地板,温暖又沉稳。简约的床具搭配柔软的床品,带来优质睡眠体验。

高阳-保利天汇1-134平-卫生间1.jpg 高阳-保利天汇1-134平-卫生间.jpg

卫生间以简洁实用为设计核心,采用干湿分离布局,整体以白色大理石为主材,搭配深灰色的浴室柜和黑色的五金件,形成经典的黑白灰配色,简约又高级。

高阳-保利天汇1-134平-玄关.jpg 高阳-保利天汇1-134平-玄关1.jpg

玄关设计风格现代且富有个性。整体色调以黑白灰为主,营造出简洁大气又沉稳的氛围。墙面部分采用白色搭配深色门框,形成鲜明对比,同时一侧运用大理石材质,提升空间质感。

保利1户型图.jpg

案例设计师

高阳

设计师:高阳

从业时间:11年

设计理念:有限空间、无限设计。

预约设计师

算算你家装修多少钱

报名即享丰厚赠品,享半价装修

免费报价
咨询热线:400-656-9909
20190221103704574636.jpg

精品设计案例

20180612134930523248.jpg 服务号二维码.jpg