立即预约 立即预约
免费定制整装家居

免费定制整装家居

一站置家 全程无忧 一省到底
hide.png

当前位置: 首页 > 装修案例效果图 > 华发全运首府

华发全运首府 120平 北欧风格效果图

收藏
案例风格 北欧 案例户型 二居 案例面积 120平米
楼盘名称 华发全运首府 设计师 林凤设计师 案例类型 旧房改造

设计理念:北欧风格的设计在追求简洁的同时也是非常注重功能性的,充分的体现了以人为本的设计理念。

客厅
第1张
第2张
第3张
餐厅
第1张
卧室
第1张
卫生间
第1张
厨房
第1张
第2张
儿童房
第1张
门厅
第1张
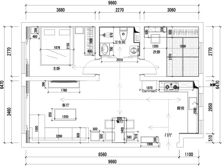
户型图
第1张
华发首府-120平-北欧风格-背景墙.jpg 华发首府-120平-北欧风格-客厅.jpg 华发首府-120平-北欧风格-首图.jpg

采用蓝色与白色的碰撞,彰显简洁与活力,木制家具的应用,又增添了领人心情愉悦放松的气息。

华发首府-120平-北欧风格-餐桌.jpg 华发首府-120平-北欧风格-卧室.jpg

运用蓝色不仅与客厅的背景墙颜色相互呼应,而且给人一种放松舒适的感觉,飘窗的设计更是为这对夫妻增加的活动空间,壁灯与挂画也制造了浪漫的感觉。

华发首府-120平-北欧风格-卫生间.jpg 华发首府-120平-北欧风格-厨房.jpg 华发首府-120平-北欧风格-厨房2.jpg

采用以白色为主的设计,给人一种,干净整洁的感觉。

华发首府-120平-北欧风格-儿童房.jpg 华发首府-120平-北欧风格-玄关.jpg 华发首府-120平-北欧风格-平面图.jpg

案例设计师

林凤设计师

设计师:林凤设计师

从业时间:10年

设计理念:室内设计是是人与环境的联系,是人类艺术与物质文明的结合

预约设计师

算算你家装修多少钱

报名即享丰厚赠品,享半价装修

免费报价
咨询热线:400-656-9909
20190221103704574636.jpg

精品设计案例

20180612134930523248.jpg 服务号二维码.jpg