立即预约 立即预约
免费定制整装家居

免费定制整装家居

一站置家 全程无忧 一省到底
hide.png

当前位置: 首页 > 装修案例效果图 > 容身和悦名邸|现代风格

容身和悦名邸|现代风格 110平 现代简约风格效果图

收藏
案例风格 现代简约 案例户型 三居 案例面积 110平米
楼盘名称 容身和悦名邸 设计师 李丹 案例类型 改善性住宅

设计理念:

客厅
第1张
卧室
第1张
卫生间
第1张
第2张
厨房
第1张
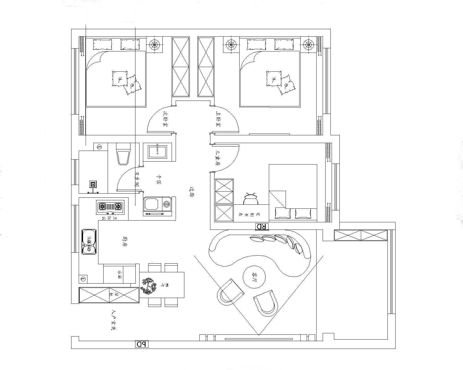
户型图
第1张
荣盛和悦名邸-110平-现代风格-客厅.jpg

浅色的墙面配上皮质的沙发,显着整体更有质感,浅色系让整体更加温馨

荣盛和悦名邸-110平-现代风格-卧室.jpg

卧室床头软装部分用了棉麻质感的床头,让卧室更加温馨

荣盛和悦名邸-110平-现代风格-卫生间 (2).jpg 荣盛和悦名邸-110平-现代风格-卫生间.jpg

卫生间选用了干湿分离,人口多的时候卫生间可以同时使用

荣盛和悦名邸-110平-现代风格-厨房.jpg

对于厨房的设计,是整个房屋重中之重的一点厨房的柜体选用了浅色的亮面,让厨房看着更加明亮

荣盛和悦名邸-110平-现代风格-平面布置图.jpg

案例设计师

李丹

设计师:李丹

从业时间:5年

设计理念:用我的专业和你的想法,打造专业的家

预约设计师

算算你家装修多少钱

报名即享丰厚赠品,享半价装修

免费报价
咨询热线:400-656-9909
20190221103704574636.jpg

精品设计案例

20180612134930523248.jpg 服务号二维码.jpg