立即预约 立即预约
免费定制整装家居

免费定制整装家居

一站置家 全程无忧 一省到底
hide.png

当前位置: 首页 > 装修案例效果图 > 惠民馨苑

惠民馨苑 148平 美式风格效果图

收藏
案例风格 美式 案例户型 三居 案例面积 148平米
楼盘名称 惠民馨苑 设计师 林凤设计师 案例类型 改善性住宅

设计理念:本案以温馨、浪漫的简美风格为主要设计手法,营造四口幸福之家。

客厅
第1张
第2张
第3张
第4张
餐厅
第1张
第2张
第3张
卧室
第1张
卫生间
第1张
厨房
第1张
过廊
第1张
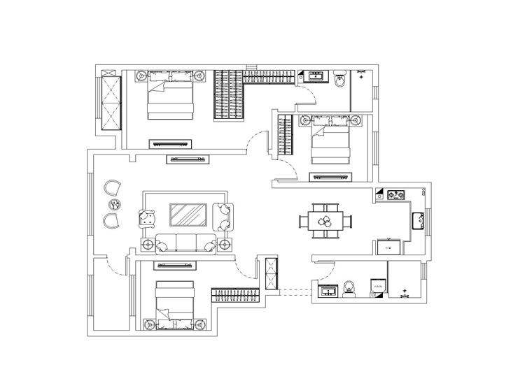
户型图
第1张
  • 案例详情

惠民馨苑-148平-简美风格-客厅4.jpg 惠民馨苑-148平-简美风格-客厅.jpg 惠民馨苑-148平-简美风格-客厅2.jpg 惠民馨苑-148平-简美风格-客厅3.jpg

客厅的设计并没有像普遍美式做太多造型类设计,而是在墙面采用了简单的乳胶漆调色,搭配简单的布艺组合沙发,营造浪漫的气氛,电视背景墙的壁炉是整体客厅设计的核心部分,复古的壁炉增添了不少乡村气氛,随意间的感觉正符合业主夫妇的性格。

惠民馨苑-148平-简美风格-餐厅3.jpg 惠民馨苑-148平-简美风格-餐厅.jpg 惠民馨苑-148平-简美风格-餐厅2.jpg

粗狂大气的美式餐桌,搭配复古造型的餐边柜, 整个餐厅都围绕这复古。浪漫地气息。

惠民馨苑-148平-简美风格-卧室.jpg

主卧室家具颜色较为稳重,床头淡淡的随影绿色碎花壁纸,活泼又贴近自然,让稳重的美式家具增添了几分 新意

惠民馨苑-148平-简美风格-卫生间.jpg

卫生间墙砖选择淡黄色瓷砖。与干净的白色洁具百分之百完美贴合,干净有明亮。

惠民馨苑-148平-简美风格-厨房.jpg

厨房地砖选择浅黄色仿古转,白色吸塑橱柜与黄色墙砖,充分利用了对空间的处理来引导视觉的延伸,这样不仅从心理上达到扩大视觉空间的效果,还让整个空间保持了空前的统一。

惠民馨苑-148平-简美风格-过廊.jpg 惠民馨苑-148平-简美风格-平面图.jpg

案例设计师

林凤设计师

设计师:林凤设计师

从业时间:7年

设计理念:合理划分空间,让设计融入生活。

预约设计师

算算你家装修多少钱

报名即享丰厚赠品,享半价装修

免费报价
咨询热线:400-656-9909
20190221103704574636.jpg

精品设计案例

20180612134930523248.jpg 服务号二维码.jpg