立即预约 立即预约
免费定制整装家居

免费定制整装家居

一站置家 全程无忧 一省到底
hide.png

当前位置: 首页 > 装修案例效果图 > 龙湖源著

龙湖源著 120平 新中式风格效果图

收藏
案例风格 新中式 案例户型 三居 案例面积 120平米
楼盘名称 龙湖源著 设计师 林凤装饰设计师 案例类型 改善性住宅

设计理念:业主喜欢沉稳且简洁明了的风格,所以为其定位为新中式风格。成熟稳重又不失优雅。

客厅
第1张
第2张
第3张
第4张
餐厅
第1张
第2张
卧室
第1张
卫生间
第1张
门厅
第1张
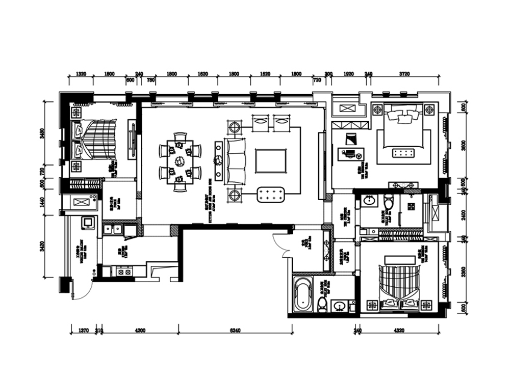
户型图
第1张
  • 案例详情

孙也-龙湖源著-120平-新中式风格-客厅1.jpg 孙也-龙湖源著-120平-新中式风格-客厅3.jpg 孙也-龙湖源著-120平-新中式风格-客厅2.jpg 孙也-龙湖源著-120平-新中式风格-客厅4.jpg

客厅与餐厅整体为通厅并未做墙体分割,让人的视觉感受更加明亮舒服。顶面为包含中央空调在走廊区域做了直线边棚,局部的吊顶不会让空间显得压抑。背景墙以中式木线条为线框,暖色墙纸铺贴,更显空间温馨、明亮。

孙也-龙湖源著-120平-新中式风格-餐厅1.jpg 孙也-龙湖源著-120平-新中式风格-餐厅2.jpg

餐厅整体的造型是考虑到了整体,是墙面和棚面完美的结合。以四联壁画做景观与空间软装饰品色彩相呼应,让整体感觉更加灵动、丰富多彩。

主卧室.jpg

卧室考虑为业主休憩的空间,色调主要为稳重的大地色,让居住的人心平气和。搭配书桌与书柜,提高了主人的文化素养需求。

孙也-龙湖源著-120平-新中式风格-卫生间.jpg

在瓷砖的选择上考虑了暖颜色,材质是地砖上墙,砌筑的浴缸看着大气上档次,满足了主人的泡澡冲浪需求。

孙也-龙湖源著-120平-新中式风格-玄关.jpg 孙也-龙湖源著-120平-新中式风格-平面图.jpg

案例设计师

林凤装饰设计师

设计师:林凤装饰设计师

从业时间:6年

设计理念:空间是生活的一部分,但我们设计一个空间时要考虑的是生活的全部。

预约设计师

算算你家装修多少钱

报名即享丰厚赠品,享半价装修

免费报价
咨询热线:400-656-9909
20190221103704574636.jpg

精品设计案例

20180612134930523248.jpg 服务号二维码.jpg