立即预约 立即预约
免费定制整装家居

免费定制整装家居

一站置家 全程无忧 一省到底
hide.png

当前位置: 首页 > 装修案例效果图 > 格林玫瑰湾

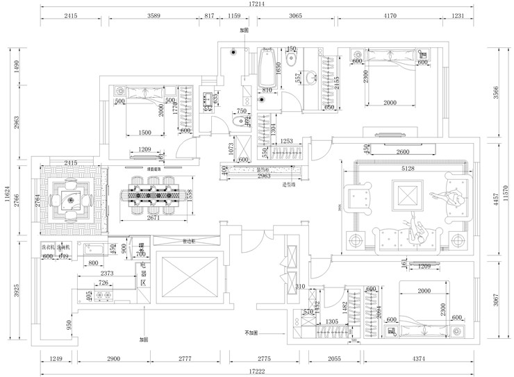
格林玫瑰湾 180平 现代简约风格效果图

收藏
案例风格 现代简约 案例户型 三居 案例面积 180平米
楼盘名称 格林玫瑰湾 设计师 杨达 案例类型 改善性住宅

设计理念:家是心灵的港湾。随着人们在旅游中感受到简约的魅力,“简约但并不简单的装饰风格”。当疲惫的身心对家的依恋越发强烈,人们想要的是轻松、自由的环境,“现代风格”自然就成为家居设计的一种风尚。注重大小色块间的组合,地域性的后期配饰融入设计风格之中。

  • 案例详情

格林玫瑰湾-180平-现代风格-客厅4.jpg 格林玫瑰湾-180平-现代风格-客厅2.jpg 格林玫瑰湾-180平-现代风格-客厅1.jpg 格林玫瑰湾-180平-现代风格-客厅3.jpg

客厅作为家庭生活活动区域之一,它既是全家活动、娱乐、休闲、团聚、就餐等活动场所,又是接待客人对外联系交往的社会活动空间。因此,客厅装修是整个家庭装修的重点。 会客区的沙发作用很重要,他的造型和颜色会直接影响到客厅的风格。 另一个亮点就是客厅,餐厅过道的吊顶,相互呼应。色彩作为装饰手段,墙面色彩因能改变居室的外观与格调而受到重视。色彩不占用居室空间,不受空间结构的限制,运用方便灵活,最能体现居住者的个性风格。

格林玫瑰湾-180平-现代风格-餐厅1.jpg 格林玫瑰湾-180平-现代风格-餐厅2.jpg

餐厅是家居生活的心脏,不仅要美观,更重要的实用性,整体性。餐厅的灯光很重要既不能太强又不能太弱,所以设计中灯光则以温馨和暖的黄色为基调,顶部做了简单的吊顶。在餐桌的墙面上摆放一些装饰画,以达到增加餐厅的情调。而餐桌上的绿色植物,则起到了画龙点睛的作用,使环境充满生机与活力。

格林玫瑰湾-180平-现代风格-卧室4.jpg 格林玫瑰湾-180平-现代风格-卧室2.jpg 格林玫瑰湾-180平-现代风格-卧室3.jpg 格林玫瑰湾-180平-现代风格-卧室1.jpg

卧室是不仅是睡眠休息的地方,而且是最具隐私性的空间,特别是主卧。本案主卧的设计,将其与客厅、餐厅协调统一起来,床头背景都运用了壁纸等材料,从而营造一个现代化的主卧空间。

格林玫瑰湾-180平-现代风格-卫生间3.jpg 格林玫瑰湾-180平-现代风格-卫生间1.jpg 格林玫瑰湾-180平-现代风格-卫生间2.jpg

我们在淋浴时,卫生间会产生大量的水和雾气,所以卫生间中的具备防水、防潮功能,天然石材和各种瓷砖都具有很好的防水性,而且表面都比较光洁、平整易干燥。

格林玫瑰湾-180平-现代风格-玄关2.jpg 格林玫瑰湾-180平-现代风格-玄关1.jpg

玄关是一个缓冲过渡地段。虽然是居室空间中狭小的一角,却对整个居室的风格起着至关重要的作用。玄关是反映主任文化气质的脸面,是给客人第一印象的关键所在,必须精心设计。玄关因地制宜,可大可小,可繁可简,但绝不能可有可无。

格林玫瑰湾-180平-现代风格-平面图.jpg

案例设计师

杨达

设计师:杨达

从业时间:10年

设计理念:精雕细琢,返璞归真。

预约设计师

算算你家装修多少钱

报名即享丰厚赠品,享半价装修

免费报价
咨询热线:400-656-9909
20190221103704574636.jpg

精品设计案例

20180612134930523248.jpg 服务号二维码.jpg