立即预约 立即预约
免费定制整装家居

免费定制整装家居

一站置家 全程无忧 一省到底
hide.png

当前位置: 首页 > 装修案例效果图 > 金地艺境

金地艺境 130平 北欧风格效果图

收藏
案例风格 北欧 案例户型 三居 案例面积 130平米
楼盘名称 金地艺境 设计师 林凤装饰设计师 案例类型 改善性住宅

设计理念:本案为北欧风格,北欧风格是最具有人情味的设计风格。色彩多用木色,与蓝色点缀,活泼而不失时尚。家具装饰布置上追求简洁,直接,功能化,贴近自然,营造一个比较舒适灵动的居住环境。

客厅
第1张
第2张
第3张
第4张
餐厅
第1张
卧室
第1张
卫生间
第1张
门厅
第1张
第2张
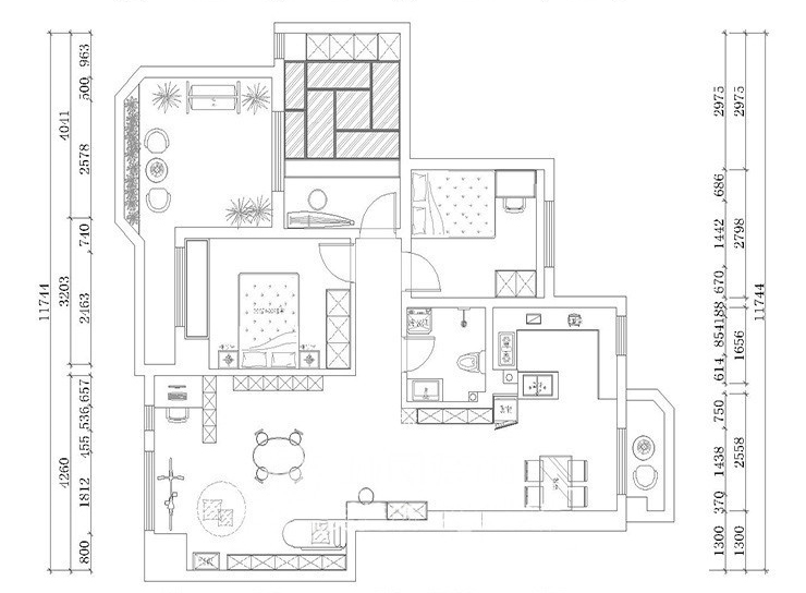
户型图
第1张
  • 案例详情

金地意境-130平-北欧风格-客厅1.jpg 金地意境-130平-北欧风格-客厅2.jpg 金地意境-130平-北欧风格-客厅3.jpg 金地意境-130平-北欧风格-客厅4.jpg

客厅用色较多,活泼,充满活力,功能性强,舒适,让家拥有了灵魂。

金地意境-130平-北欧风格-餐厅1.jpg

餐厅设计充满了年轻的元素,色彩灵活 ,设计感强。

金地意境-130平-北欧风格-卧室.jpg

北欧风格卧室配色和谐,暖灰色和原木色的搭配简洁而不简单的设计给业主一种舒适安静的感觉 心情舒畅。

金地意境-130平-北欧风格-卫生间.jpg 金地意境-130平-北欧风格-门厅.jpg 金地意境-130平-北欧风格-门厅1.jpg 金地意境-130平-北欧风格-平面方案.jpg

案例设计师

林凤装饰设计师

设计师:林凤装饰设计师

从业时间:6年

设计理念:设计源于生活,生活因设计而改变。

预约设计师

算算你家装修多少钱

报名即享丰厚赠品,享半价装修

免费报价
咨询热线:400-656-9909
20190221103704574636.jpg

精品设计案例

20180612134930523248.jpg 服务号二维码.jpg