立即预约 立即预约
免费定制整装家居

免费定制整装家居

一站置家 全程无忧 一省到底
hide.png

当前位置: 首页 > 装修案例效果图 > 正大桃花源

正大桃花源 112平 现代简约风格效果图

收藏
案例风格 现代简约 案例户型 三居 案例面积 112平米
楼盘名称 正大桃花源 设计师 李承成 案例类型 改善性住宅

设计理念:本案是现代简约风格,现代简约,顾名思义,就是让所有的细节看上去都是非常简洁的。装修中极简便是让空间看上去非常简洁,大气。装修的部位要少,但在颜色和布局上,在装修材料的选择配搭上需要费很大劲,这是一种境界。

客厅
第1张
第2张
第3张
第4张
餐厅
第1张
卧室
第1张
卫生间
第1张
厨房
第1张
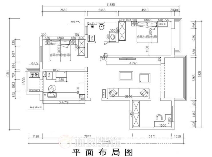
户型图
第1张
  • 案例详情

正大桃花源-112平-现代风格-客厅3.jpg 正大桃花源-112平-现代风格-客厅.jpg 正大桃花源-112平-现代风格-客厅1.jpg 正大桃花源-112平-现代风格-客厅2.jpg

本案客厅采用简约现代的风格是思想追求和精神情趣的直接反应,它与个人的文化背景和家庭修养的基础上,设计有自己特色的居室风格。简洁沙发和茶几,沙发独立靠在墙边,茶几上放了一盆植物,给人一种舒适安静的生活。

正大桃花源-112平-现代风格-餐厅.jpg

本案餐厅与厨房融为一体,这个布局以实现特定风格情调。采用白色大理石台面创造出大气的感觉。

正大桃花源-112平-现代风格-卧室.jpg

主卧是主人休息的区域,主卧设计空间合理简洁,衣柜放在床边让空间不会有那么拥挤,,卧室可以使主人在休息的时候可以安静的在这看书和休息。

正大桃花源-112平-现代风格-卫生间.jpg

卫生间的设计合理规划了动线。浴屏的设计分割开淋雨区与洗簌区,达到干湿分离的效果。手盆上镜子的设计拉伸了空间,使空间显得更加宽敞明亮。

正大桃花源-112平-现代风格-厨房.jpg

现代化的厨房是家庭装修的重要组成部分,是制作食品的场所。光线充足,通风良好,环境洁净和使用方便是现代化厨房的装修基础要求。颜色的选择以大气的黑色为主。

户型图.jpg

案例设计师

李承成

设计师:李承成

从业时间:15年

设计理念:细节决定品质。

预约设计师

算算你家装修多少钱

报名即享丰厚赠品,享半价装修

免费报价
咨询热线:400-656-9909
20190221103704574636.jpg

精品设计案例

20180612134930523248.jpg 服务号二维码.jpg