立即预约 立即预约
免费定制整装家居

免费定制整装家居

一站置家 全程无忧 一省到底
hide.png

当前位置: 首页 > 装修案例效果图 > 中粮隆玺

中粮隆玺 166平 现代简约风格效果图

收藏
案例风格 现代简约 案例户型 三居 案例面积 166平米
楼盘名称 中粮隆玺 设计师 林凤设计师 案例类型 改善性住宅

设计理念:本案是用现代手法来体现一种生活本质,生而单纯,学而繁杂,经历岁月变迁,在外风雨打拼,无论何时,希望回到家时,心情是轻松地,简单的不想、不念斑驳破碎的心情。

客厅
第1张
餐厅
第1张
卧室
第1张
卫生间
第1张
第2张
厨房
第1张
书房
第1张
儿童房
第1张
门厅
第1张
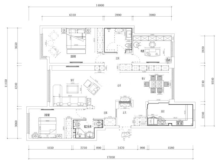
户型图
第1张
  • 案例详情

中粮隆玺-166-现代风格-客厅.jpg

客厅棚墙面主要运用各种线来体现区域的划分,背景墙使用油漆饰面板,加大了空间的视觉效果,整体的客厅大气又舒适。通过室内家具色彩打造现代气氛,又通过线条、灯具、软装配饰来体现现代的生活气息。

中粮隆玺-166-现代风格-餐厅.jpg

餐厅搭配深木色的餐桌,体现餐厅与整个空间的统一性和谐性。空间色彩以白色为主。

中粮隆玺-166-现代风格-主卧室.jpg

卧室兼备和谐、舒适的特点,体现出现代素雅的气质。空间材质以及色调显示出主人的喜好与品味。

中粮隆玺-166-现代风格-客卫生间.jpg 中粮隆玺-166-现代风格-主卫生间.jpg 中粮隆玺-166-现代风格-厨房.jpg 中粮隆玺-166-现代风格-书房.jpg 中粮隆玺-166-现代风格-儿童卧室.jpg 中粮隆玺-166-现代风格-主玄关.jpg 中粮隆玺-166平-现代风格平面图.jpg

案例设计师

林凤设计师

设计师:林凤设计师

从业时间:10年

设计理念:

预约设计师

算算你家装修多少钱

报名即享丰厚赠品,享半价装修

免费报价
咨询热线:400-656-9909
20190221103704574636.jpg

精品设计案例

20180612134930523248.jpg 服务号二维码.jpg