立即预约 立即预约
免费定制整装家居

免费定制整装家居

一站置家 全程无忧 一省到底
hide.png

当前位置: 首页 > 装修案例效果图 > 上山间

上山间 137平 中式风格效果图

收藏
案例风格 中式 案例户型 三居 案例面积 137平米
楼盘名称 上山间 设计师 林凤装饰设计师 案例类型 改善性住宅

设计理念:本案以中式设计风格为主,融合了庄重和优雅的双重气质。主要特点较多运用对称简约的表现形式。家具及硬装墙板均采用红花梨制作,是品质性,实用性与装饰性的高度完美融合。家具雕刻采用传统梅兰竹菊四君子配以祥云等纹样,及充分渲染整个居住空间的文化气息,又有吉祥如意,富贵花开的美好寓意。

客厅
第1张
第2张
卧室
第1张
卫生间
第1张
厨房
第1张
书房
第1张
第2张
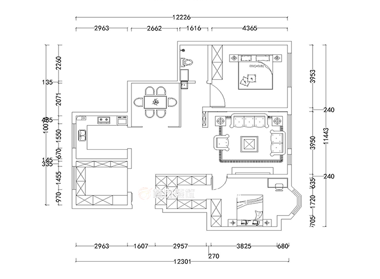
户型图
第1张
第2张
第3张
  • 案例详情

上山间-137平-中式风格-首图.jpg 上山间-137平-中式风格-客厅.jpg

客厅作为待客区域,中式风格的客厅典雅精致,选用纯中式沙发。红花梨木雕刻背景墙,使整个客厅空间传统不失品质,低调及具内涵。

上山间-137平-中式风格-卧室.jpg

在卧室的设计上,追求功能与形式的完美统一,优雅独特简洁明快。

上山间-137平-中式风格-卫生间.jpg

卫生间设计大体以方便,安全,大气及美观得体为主。

上山间-137平-中式风格-厨房.jpg 上山间-137平-中式风格-榻榻米1.jpg 上山间-137平-中式风格-榻榻米2.jpg 上山间-137平-中式风格-客厅草图.jpg 上山间-137平-中式风格-平面图.jpg 上山间-137平-中式风格-卧室草图.jpg

案例设计师

林凤装饰设计师

设计师:林凤装饰设计师

从业时间:8年

设计理念:好的设计是实用性,经济性,和艺术性的高度统一。

预约设计师

算算你家装修多少钱

报名即享丰厚赠品,享半价装修

免费报价
咨询热线:400-656-9909
20190221103704574636.jpg

精品设计案例

20180612134930523248.jpg 服务号二维码.jpg