立即预约 立即预约
免费定制整装家居

免费定制整装家居

一站置家 全程无忧 一省到底
hide.png

当前位置: 首页 > 装修案例效果图 > 凤凰水城

凤凰水城 130平 港式风格效果图

收藏
案例风格 港式 案例户型 三居 案例面积 130平米
楼盘名称 凤凰水城 设计师 林凤设计师 案例类型 改善性住宅

设计理念:港式风格在追求实用性同时,还要体现现代化社会个性与精致特点。所以现代港式风格装修在空间上讲求通透。港式特性有所不一样,即是在寻求有用性的同时还要表现现代化社会特性与精美特征。

客厅
第1张
第2张
第3张
第4张
第5张
餐厅
第1张
卧室
第1张
卫生间
第1张
厨房
第1张
门厅
第1张
过廊
第1张
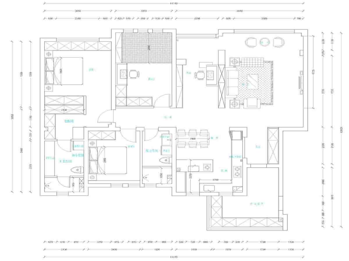
户型图
第1张
  • 案例详情

凤凰水城-130平-现代港式风格-客厅.jpg 凤凰水城-130平-现代港式风格-客厅01.jpg 凤凰水城-130平-现代港式风格-客厅03.jpg 凤凰水城-130平-现代港式风格-客厅02.jpg 凤凰水城-130平-现代港式风格-客厅04.jpg

沙发多用灰暗或者素雅的色彩和图案,所以,沙发靠垫应该尽可能地调节沙发的刻板印象,色彩可以跳跃一些,但不要太过,只需比沙发本身的颜色亮一点儿就可以了。

凤凰水城-130平-现代港式风格-餐厅.jpg

家居里有一个细节需要仔细搭配、精心挑选,那就是餐桌上的餐具。在港式设计里面,家居中的用料、家具等大多精良,因而,在餐具上面也应该选择那些精致的瓷器、陶艺与之匹配。

凤凰水城-130平-现代港式风格-卧室.jpg

现代港式风格的卧室给人以温馨的感觉,色彩简洁明快,黑白条纹为点缀,整个卧室简洁而温馨。

凤凰水城-130平-现代港式风格-卫生间.jpg 凤凰水城-130平-现代港式风格-厨房.jpg 凤凰水城-130平-现代港式风格-玄关.jpg 凤凰水城-130平-现代港式风格-过廊.jpg 凤凰水城-130平-现代港式风格-平面图.jpg

案例设计师

林凤设计师

设计师:林凤设计师

从业时间:6年

设计理念:化繁为简,以简驭繁。

预约设计师

算算你家装修多少钱

报名即享丰厚赠品,享半价装修

免费报价
咨询热线:400-656-9909
20190221103704574636.jpg

精品设计案例

20180612134930523248.jpg 服务号二维码.jpg