立即预约 立即预约
免费定制整装家居

免费定制整装家居

一站置家 全程无忧 一省到底
hide.png

当前位置: 首页 > 装修案例效果图 > 保利达江湾城

保利达江湾城 85平 北欧风格效果图

收藏
案例风格 北欧 案例户型 二居 案例面积 85平米
楼盘名称 保利达江湾城 设计师 菅垚 案例类型 婚房

设计理念:本案以北欧为主设计,大气沉稳温馨是设计的主线,这种搭配令客户舒,是不错的选择。以简洁明快的设计风格为主调,简洁和实用是现代简约风格的基本特点。本案设计师以简洁明快的设计风格为主调,全面考虑,在总体布局方面,满足生活上的需求.

客厅
第1张
第2张
第3张
第4张
餐厅
第1张
第2张
卧室
第1张
卫生间
第1张
厨房
第1张
户型图
第1张
  • 案例详情

保利达江湾城-85平-北欧风格-客厅 (1).jpg 保利达江湾城-85平-北欧风格-客厅 (2).jpg 保利达江湾城-85平-北欧风格-客厅 (3).jpg 保利达江湾城-85平-北欧风格-客厅 (4).jpg

客厅体现了主人品格,地位,也是交友娱乐的场合户主希望自己家有稍有档次,电视背景墙与镂空的小柜搭配使得空间利用更加合理时尚,家具主要以原木色为主,华丽又干净的装饰使得整个客厅更加有层次感深受户主喜欢。

保利达江湾城-85平-北欧风格-餐厅.jpg 保利达江湾城-85平-北欧风格-卧室 (1).jpg

餐厅主要以吧台作为用餐处,暖色筒灯更好的区分了用餐空间。

保利达江湾城-85平-北欧风格-卧室 (2).jpg

卧室,作为我们居住的最主要的作用的场所而言,这也是家居的最主要功能,北欧卧室兼备干净、清新、华丽的特点,受到了越来越多业主的喜爱。业主喜欢清新干净的样式,北欧风格正好满足女业主的需求

保利达江湾城-85平-北欧风格-卫生间.jpg

卫生间墙地砖选择白色理石系列的砖给人带来的是一种温馨。整个色系以白为主色调。

保利达江湾城-85平-北欧风格-厨房.jpg

厨房主要以理石在搭配木门板,颇显出自然风姿,浅色搭配的运用,让女主人在烹饪过程中会放松身心,享受做饭的乐趣。整个厨房的材质都是易于打理的,平时也不易有划痕。

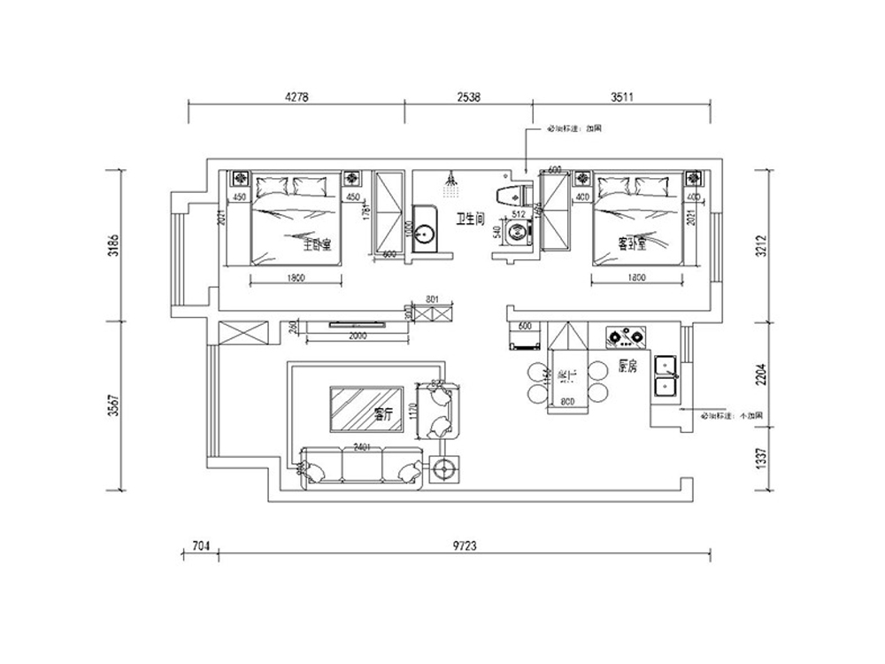
保利达江湾城-85平-北欧风格-户型图.jpg

案例设计师

菅垚

设计师:菅垚

从业时间:11年

设计理念:没有最好的方案,只有最适合的方案

预约设计师

算算你家装修多少钱

报名即享丰厚赠品,享半价装修

免费报价
咨询热线:400-656-9909
20190221103704574636.jpg

精品设计案例

20180612134930523248.jpg 服务号二维码.jpg