立即预约 立即预约
免费定制整装家居

免费定制整装家居

一站置家 全程无忧 一省到底
hide.png

当前位置: 首页 > 装修案例效果图 > 金地铁西檀府

金地铁西檀府 125平 现代简约风格效果图

收藏
案例风格 现代简约 案例户型 三居 案例面积 125平米
楼盘名称 金地铁西檀府 设计师 林凤装饰设计师 案例类型 改善性住宅

设计理念:整体设计为现代简约风格,将整个空间以大面积的色块进行各功能区的划分,在以颜色的区分范围进行吊顶的设计,是各功能区的划分更加明白清晰。

客厅
第1张
第2张
第3张
餐厅
第1张
厨房
第1张
衣帽间
第1张
过廊
第1张
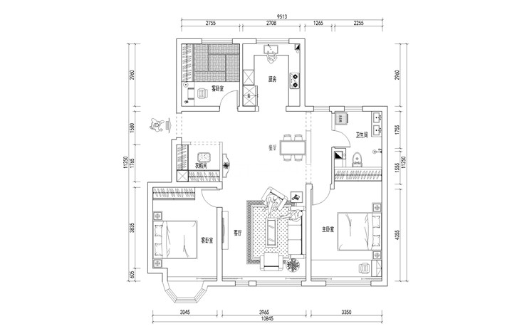
户型图
第1张
  • 案例详情

金地铁西檀府125平米-现代简约-电视背景.jpg 金地铁西檀府125平米-现代简约-沙发背景.jpg 金地铁西檀府125平米-现代简约-客厅1.jpg

客厅采用灰色,与黄色的结合,灰色本高级,黄色增加温馨与灵动,同时灰色和黄色寓意了(辉煌)之意。

金地铁西檀府125平米-现代简约-餐厅.jpg

客厅采用灰色,与黄色的结合,灰色本高级,黄色增加温馨与灵动,同时灰色和黄色寓意了(辉煌)之意。

金地铁西檀府125平米-现代简约-厨房.jpg

餐厅与开敞的厨房在一起方便业主就餐。

金地铁西檀府125平米-现代简约-衣帽间.jpg

相信每个女人都想拥有一个属于自己的衣帽间,里面放着自己喜欢的衣服、包包和鞋子啊。本案设计白色油漆配玻璃门衣柜,高端典雅,透过玻璃,宛若高端卖场橱窗里的珍品。

金地檀府125平米-现代简约-过廊.jpg 金地铁西檀府125平米-现代简约-平面图.jpg

案例设计师

林凤装饰设计师

设计师:林凤装饰设计师

从业时间:6年

设计理念:Less is more.

预约设计师

算算你家装修多少钱

报名即享丰厚赠品,享半价装修

免费报价
咨询热线:400-656-9909
20190221103704574636.jpg

精品设计案例

20180612134930523248.jpg 服务号二维码.jpg