立即预约 立即预约
免费定制整装家居

免费定制整装家居

一站置家 全程无忧 一省到底
hide.png

当前位置: 首页 > 装修案例效果图 > 龙湖唐宁one

龙湖唐宁one 88平 北欧风格效果图

收藏
案例风格 北欧 案例户型 二居 案例面积 88平米
楼盘名称 龙湖唐宁one 设计师 林凤装饰设计师 案例类型 婚房

设计理念:该案设计采用北欧设计风格,用一种最简单、直接、功能化强的设计手法还给业主一个清新自然的居住环境,清爽简洁干净,从很大程度上阐述了一种简单洒脱的生活态度。

客厅
第1张
第2张
第3张
第4张
第5张
餐厅
第1张
卧室
第1张
卫生间
第1张
厨房
第1张
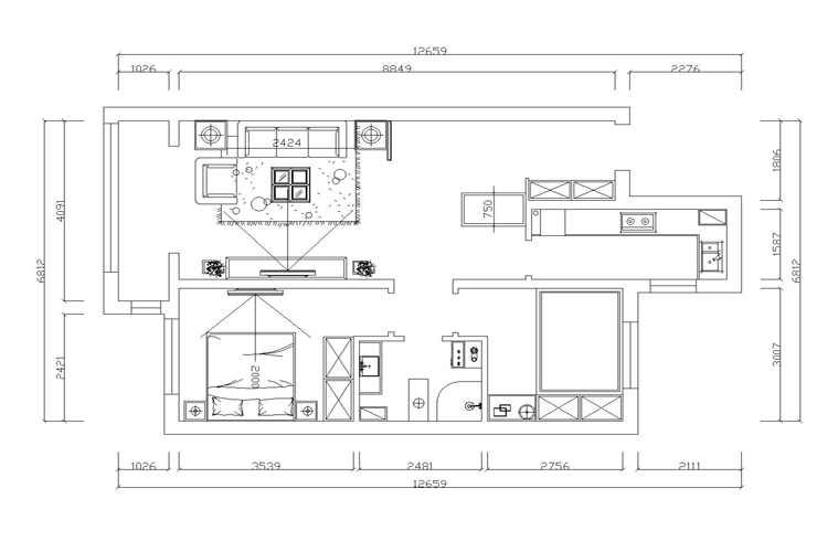
户型图
第1张
  • 案例详情

龙湖唐宁one-88㎡-北欧-大厅2.jpg 龙湖唐宁one-88㎡-北欧-大厅3.jpg 龙湖唐宁one-88㎡-北欧-大厅1.jpg 龙湖唐宁one-88㎡-北欧-大厅5.jpg 龙湖唐宁one-88㎡-北欧-大厅4.jpg

设计师在客厅的设计上完全处于户主的角度出发,家具的色彩的整洁度,灰色的布艺沙发搭配灰白色的地板,赋予了客厅空间严肃的氛围。白色的家具配置并不单一而是让客厅空间尽显大气,藏蓝色的单椅和其他家具在色彩上形成冷暖的对比,两幅色彩鲜艳的画和多个明黄色色的抱枕装点了整个客厅空间。

龙湖唐宁one-88㎡-北欧-首图餐厅.jpg

实木质感的餐桌和皮质的餐椅在材质上形成对比,餐厅餐椅的颜色和客厅沙发主体的颜色相呼应让两个空间融为一体,一盏造型独特的吊灯赋予了空间层次感,多幅色彩淡雅的挂画让业主在用餐的同时更能享受到餐厅空间的安静宁谧。

龙湖唐宁one-88㎡-北欧-卧室.jpg

主卧室的色彩延续的客厅的跳色,明绿色的乳胶漆背景墙和暖色的实木地板在颜色上形成冷暖的对比,褐色的床搭配白色的布艺床品赋予了空间层次感,床头的书架简约大方,方便业主随时取阅

龙湖唐宁one-88㎡-北欧-卫生间.jpg

灰色的墙砖搭配灰色的地砖赋予了空间神秘感,总体的洁具选择也都是北欧风格。原木色,灰色,白色既不浮夸也不焦躁,实用且整洁。

龙湖唐宁one-88㎡-北欧-厨房.jpg

白色和咖啡色的柜体和碎花小砖的铺贴,让整个空间灵动了起来,整个厨房显得灵动且大方又不失格调。狭长的厨房,选择把冰箱放入狭长的厨房,提高了整体厨房使用的便捷度

龙湖唐宁one-88㎡-北欧-平面图.jpg

案例设计师

林凤装饰设计师

设计师:林凤装饰设计师

从业时间:8年

设计理念:认真做人,认真生活,认真设计

预约设计师

算算你家装修多少钱

报名即享丰厚赠品,享半价装修

免费报价
咨询热线:400-656-9909
20190221103704574636.jpg

精品设计案例

20180612134930523248.jpg 服务号二维码.jpg