立即预约 立即预约
免费定制整装家居

免费定制整装家居

一站置家 全程无忧 一省到底
hide.png

当前位置: 首页 > 装修案例效果图 > 朗明居

朗明居 116平 现代简约风格效果图

收藏
案例风格 现代简约 案例户型 三居 案例面积 116平米
楼盘名称 朗明居 设计师 林凤设计师 案例类型 婚房

设计理念:本案是简约现代,正所谓简约而不简单,简单又不失华丽,在这个方案里体现淋漓尽致。

客厅
第1张
第2张
第3张
餐厅
第1张
卧室
第1张
卫生间
第1张
厨房
第1张
书房
第1张
儿童房
第1张
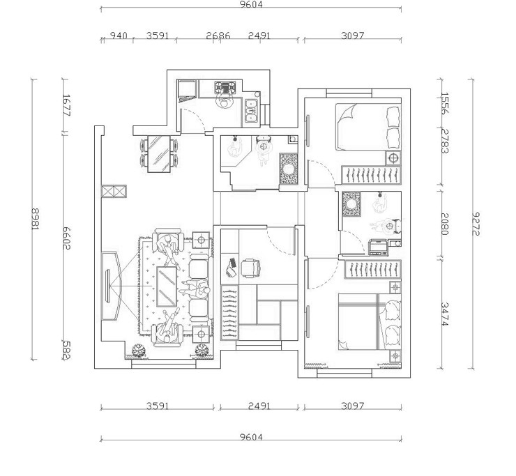
户型图
第1张
  • 案例详情

朗明居-116平米 简约现代风格-客厅 (3).jpg 朗明居-116平米 简约现代风格-客厅.jpg 朗明居-116平米 简约现代风格-客厅 (2).jpg

别具风格的简约现代扑面而来,咖啡色的电视背景墙,配以浅咖色调的软装饰品,无一不体现了营造者的修养和品位。空间的创造,光影的明暗,或是静谧,或是怀旧,或是澄净与浪漫,在摆脱了僵硬的无语言的框架后,驻入给空间一段新的阐述,成为居住者展现自我的舞台。

朗明居-116平米 简约现代风格-餐厅.jpg

由于开放商开餐厅位置留的太小,所以整合了一下最标准的位置,餐厅吊棚增加了现代气息,千篇一律的餐吊换成了筒灯和虚光灯带增加了用餐气氛。

朗明居-116平米-简约现代风格-卧室.jpg

卧室设计采用简约现代,在功能方面,卧室是休息的地方,合理的布局让卧室空间利用率很高,床头背景墙采硬包,既简单又大方,再加上色彩以暖色为主,上面可以放装饰画等,非常好看。

朗明居-116平米 简约现代风格-卫生间.jpg

两个卫生间一个主卫一个次卫,两个卫生间都较小,所以合理的规划布局很正要,在主卫生间里我选择以灰色为主的砖,加上浴屏避免了洗澡把水溅到其他家具上,在较小的空间挤出较大的作用。

朗明居-116平米 简约现代风格-厨房.jpg

厨房还是以暖黄色为主,简洁和实用是现代简约风格的基本特点。让人感觉舒适和恬静,适度的装饰是家居不缺乏时代气息,使人在在空间得到精神和身体的放松更好的发挥厨艺。

朗明居-116平米 简约现代风格-书房.jpg 朗明居-116平米 简约现代风格-次卧室.jpg 朗明居-116平米 简约现代风格-平面图.jpg

案例设计师

林凤设计师

设计师:林凤设计师

从业时间:5年

设计理念:用设计把梦想的家还原成现实

预约设计师

算算你家装修多少钱

报名即享丰厚赠品,享半价装修

免费报价
咨询热线:400-656-9909
20190221103704574636.jpg

精品设计案例

20180612134930523248.jpg 服务号二维码.jpg