立即预约 立即预约
免费定制整装家居

免费定制整装家居

一站置家 全程无忧 一省到底
hide.png

当前位置: 首页 > 装修案例效果图 > 万寿里

万寿里 47平 田园风格效果图

收藏
案例风格 田园 案例户型 一居 案例面积 47平米
楼盘名称 万寿里 设计师 林凤设计师 案例类型 婚房

设计理念:本案是田园风格,一花一草,演绎自然的乐章。

客厅
第1张
第2张
餐厅
第1张
卧室
第1张
卫生间
第1张
厨房
第1张
第2张
门厅
第1张
第2张
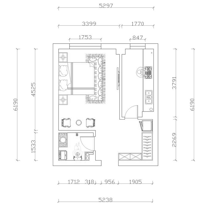
户型图
第1张
  • 案例详情

新润万寿里-47平 田园风格-客厅.jpg 新润万寿里-47平 田园风格-客厅 (2).jpg

单身公寓,主要以空间的合理化为基础,客厅和卧室一体化,利用了空间的实用性,客厅放了一个小桌子朋友来了,不怕没有地方。

新润万寿里-47平 田园风格-餐厅 .jpg

餐厅和客厅的桌子融为一体,餐厅的两面背景墙,满足了女主人照片多挂在外面的要求,餐客一体化有效增加了利用率。

新润万寿里-47平 田园风格-卧室.jpg

卧室的搭配,以风格为基准,比如床上的枕头,床单被罩,床下的地毯,都是风格的展现,为整个房子带来了欣欣向荣。

新润万寿里-47平 田园风格-卫生间.jpg

卫生间主要以暖色为主,卫生间空间比较小一些,所以要求规划更加严格,燃气热水器代替了储水式热水器,镜柜能增加更好的增加储存空间东西在多也不怕乱。

新润万寿里-47平 田园风格-厨房.jpg 新润万寿里-47平 田园风格-厨房2.jpg

厨房也是以暖色为基础,一字型的橱柜,炉具和洗菜盆进行了一个更好的分化更符合人体工程学业,从开始从冰箱里拿出食材然后进行,洗菜,切菜,炒菜,上菜,没到工序更加合理。

新润万寿里-47平 田园风格-门厅.jpg 新润万寿里-47平 田园风格-门厅 (2).jpg 新润万寿里-47平 田园风格-最新模型.jpg

案例设计师

林凤设计师

设计师:林凤设计师

从业时间:5年

设计理念:用设计把梦想的家还原成现实

预约设计师

算算你家装修多少钱

报名即享丰厚赠品,享半价装修

免费报价
咨询热线:400-656-9909
20190221103704574636.jpg

精品设计案例

20180612134930523248.jpg 服务号二维码.jpg