立即预约 立即预约
免费定制整装家居

免费定制整装家居

一站置家 全程无忧 一省到底
hide.png

当前位置: 首页 > 装修案例效果图 > 金地旭辉九韵风华

金地旭辉九韵风华 145平 中式风格效果图

收藏
案例风格 中式 案例户型 三居 案例面积 145平米
楼盘名称 金地旭辉九韵风华 设计师 林凤装饰 案例类型 改善性住宅

设计理念:本案是中式为主。整体色彩以浅色与深色为主,家具大多采用原木家具,使空间看起来简洁干净自然大方。

客厅
第1张
第2张
第3张
餐厅
第1张
卧室
第1张
卫生间
第1张
儿童房
第1张
第2张
门厅
第1张
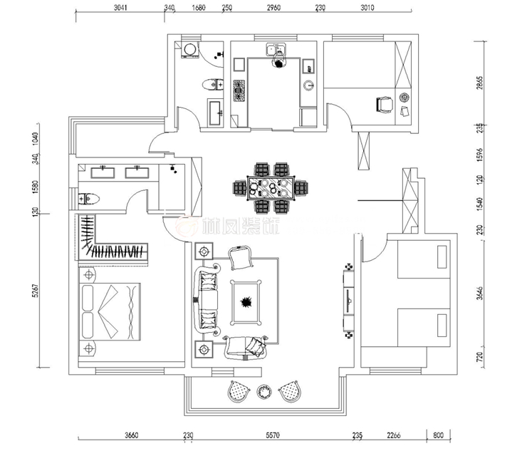
户型图
第1张
  • 案例详情

金地九韵风华-145平-新中式-客厅1.jpg 金地九韵风华-145平-新中式-客厅2.jpg 金地九韵风华-145平-新中式-客厅3.jpg

客厅整体以木质家具为主,米白色的沙发与实木的椅子相搭配,让人看起来非常的舒适,再加上浅木色的沙发背景和一些装饰,让整个客厅看起来更加具有中国元素的韵味。

金地九韵风华-145平-新中式-餐厅.jpg

餐厅也以木质家具为主,深色的桌子与浅色的地砖显得十分惹人注目,定制的浅色酒柜也与餐桌形成了对比,但是让人看起来非常的舒适。

金地九韵风华-145平-新中式-北卧室.jpg

两个女儿的卧室的采用了原木色的地板搭配上浅蓝色带图案的壁纸是整个空间看起来非常协调大方,再加上大气的床头背景让人一进来就非常的吸引目光。

金地九韵风华-145平-新中式-卫生间.jpg

卫生间空间相比其它地方是比较小的,墙砖与地砖的搭配颜色是比较接近的这样看起来非常的简洁明亮,墙上的壁画让整个卫生间看起来不那么单调。

金地九韵风华-145平-新中式-儿童房2.jpg 金地九韵风华-145平-新中式-儿童房1.jpg 金地九韵风华-145平-新中式-玄关.jpg 平面布置图.jpg

案例设计师

林凤装饰

设计师:林凤装饰

从业时间:6年

设计理念:万科翡翠书院 金地旭辉九韵风华 华润奉天九里 中海和平之门 龙湖唐宁one 金水花城 金辉湖畔里

预约设计师

算算你家装修多少钱

报名即享丰厚赠品,享半价装修

免费报价
咨询热线:400-656-9909
20190221103704574636.jpg

精品设计案例

20180612134930523248.jpg 服务号二维码.jpg