立即预约 立即预约
免费定制整装家居

免费定制整装家居

一站置家 全程无忧 一省到底
hide.png

当前位置: 首页 > 装修案例效果图 > 翔凤山水国际

翔凤山水国际 560平 欧式风格效果图

收藏
案例风格 欧式 案例户型 别墅 案例面积 560平米
楼盘名称 翔凤山水国际 设计师 林凤设计师 案例类型 改善性住宅

设计理念:本案为欧式风格。简欧风格就是简化了的欧式装修风格。也是目前住宅别墅装修最流行的风格。简欧风格更多的表现为实用性和多元化。简欧家具包括床、电视柜、书柜、衣柜、橱柜等等都与众不同,营造出日常居家不同的感觉。而且现代实用,整体设计上,和宽敞的空间布局都会给人耳目一新,温暖舒适的感觉。

客厅
第1张
第2张
餐厅
第1张
卧室
第1张
第2张
第3张
卫生间
第1张
厨房
第1张
休闲区
第1张
第2张
第3张
第4张
第5张
衣帽间
第1张
第2张
门厅
第1张
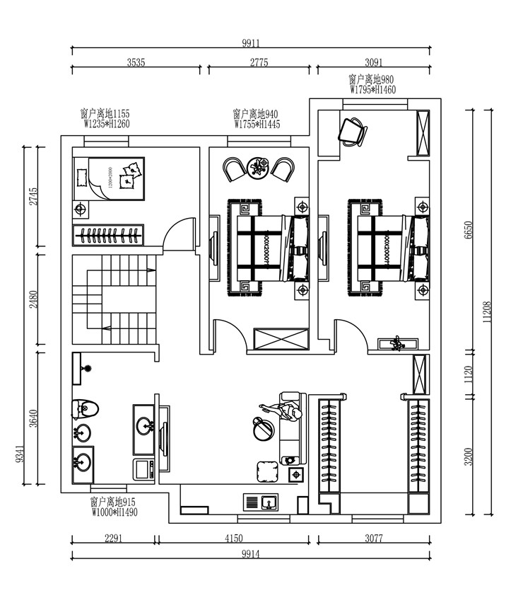
户型图
第1张
第2张
第3张
第4张
  • 案例详情

翔凤山水国际-560平-欧式风格-客厅1.jpg 翔凤山水国际-560平-欧式风格-客厅.jpg

客厅作为待客区域,一般要身心舒适,考虑到客户本身不喜欢复杂的吊顶,也为体现简美的特点,所以选用的简单的石膏线作为吊顶装饰,对沙发背景墙的设计采用了符合简美风格的挂画,也结合了家具选用的彩色布艺沙发作为呼应,也创造了自然简朴的视觉效果,充满美式元素的客厅让空间显得更加华丽,温馨。

翔凤山水国际-560平-欧式风格-餐厅.jpg

大气的餐厅,在不影响整体采光及通风的情况下设计师将餐厅设计成敞开式,舒适感增强。

翔凤山水国际-560平-欧式风格-主卧室.jpg 翔凤山水国际-560平-欧式风格-榻榻米.jpg 翔凤山水国际-560平-欧式风格-二楼卧室.jpg

儿童房布置较为温馨,作为儿童空间主要以功能性和实用舒适为主,讲究的是整体与色彩的搭配,每一个细节都体现温馨和休闲,在色彩搭配上也是非常明亮,活跃。

翔凤山水国际-560平-欧式风格-卫生间.jpg

卫生间以浅色为主,让整个空间看起来干净、明亮。卫生间洗手台、花洒位置设计合理,浴区的设计极大的满足了业主对空间的需求,也能与主体更好的结合,洗手台下设计了储物柜,更加节省了卫生间的空间

翔凤山水国际-560平-欧式风格-厨房.jpg

厨房设计主要以白色实木为材质,橱柜柜体的线形突出美式风格特点,整体色调很明亮大气。

翔凤山水国际-560平-欧式风格-地下室影音室.jpg 翔凤山水国际-560平-欧式风格-地下室酒吧.jpg 翔凤山水国际-560平-欧式风格-地下室健身房.jpg 翔凤山水国际-560平-欧式风格-地下室台球.jpg 翔凤山水国际-560平-欧式风格-地下室阳光房.jpg 翔凤山水国际-560平-欧式风格-衣帽间.jpg 翔凤山水国际-560平-欧式风格-二楼衣帽间.jpg 翔凤山水国际-560平-欧式风格-玄关.jpg 翔凤山水国际-560平-欧式风格-平面1.jpg 翔凤山水国际-560平-欧式风格-平面2.jpg 翔凤山水国际-560平-欧式风格-平面3.jpg 翔凤山水国际-560平-欧式风格-平面4.jpg

案例设计师

林凤设计师

设计师:林凤设计师

从业时间:0年

设计理念:

预约设计师

算算你家装修多少钱

报名即享丰厚赠品,享半价装修

免费报价
咨询热线:400-656-9909
20190221103704574636.jpg

精品设计案例

20180612134930523248.jpg 服务号二维码.jpg