立即预约 立即预约
免费定制整装家居

免费定制整装家居

一站置家 全程无忧 一省到底
hide.png

当前位置: 首页 > 装修案例效果图 > 金地檀府

金地檀府 107平 现代简约风格效果图

收藏
案例风格 现代简约 案例户型 二居 案例面积 107平米
楼盘名称 金地檀府 设计师 林凤装饰设计师 案例类型 婚房

设计理念:本案例合理的空间规划,运用材质,灯光,家具软装的结合,增加了实用性,美观性,储藏功能性

客厅
第1张
第2张
第3张
餐厅
第1张
卧室
第1张
第2张
卫生间
第1张
厨房
第1张
过廊
第1张
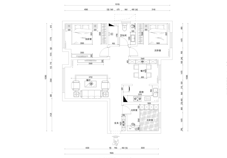
户型图
第1张
  • 案例详情

金地檀府-107平-现代风格-首图.jpg 金地檀府-107平-现代风格-客厅2.jpg 金地檀府-107平-现代风格-客厅1.jpg

整个客厅,门厅,餐厅,过廊,顶部运用了边棚的处理方式,通过灯光,来体现突出简欧风格的特点,电视墙处运用色彩的处理,饰品的摆放来增加视觉感。

金地檀府-107平-现代风格-餐厅.jpg

餐厅浅色的家具,与画品的结合,餐厅虽然很简单,但是这样的结合看起来更具欣赏性。

金地檀府-107平-现代风格-主卧.jpg 金地檀府-107-现代风格-次卧.jpg

5.卧室静静的感觉,很适合休息,窗帘的色彩使空间更有灵动性。6.用了榻榻米的处理方式,增加很多的储藏功能性,也是一个多功能的空间。

金地檀府-107平-现代风格-卫生间.jpg 金地檀府-107平-现代风格-厨房.jpg

L型的橱柜的厨房增加了好多的储藏功能性,也增加了餐厅和厨房的互动性,上下版的柜门颜色的对比,空间更具有灵动性。

金地檀府-107平-现代风格-过廊.jpg 金地檀府-107平-现代风格-平面图.jpg

案例设计师

林凤装饰设计师

设计师:林凤装饰设计师

从业时间:8年

设计理念:让传统生活在现代,让创新走进生活

预约设计师

算算你家装修多少钱

报名即享丰厚赠品,享半价装修

免费报价
咨询热线:400-656-9909
20190221103704574636.jpg

精品设计案例

20180612134930523248.jpg 服务号二维码.jpg