立即预约 立即预约
免费定制整装家居

免费定制整装家居

一站置家 全程无忧 一省到底
hide.png

当前位置: 首页 > 装修案例效果图 > 远洋和平府

远洋和平府 135平 港式风格效果图

收藏
案例风格 港式 案例户型 三居 案例面积 135平米
楼盘名称 远洋和平府 设计师 林凤装饰设计师 案例类型 改善性住宅

设计理念:本案例利用空间合理规划深色地板与大理石颜色相结合,整体更加高端。

客厅
第1张
餐厅
第1张
第2张
卧室
第1张
厨房
第1张
门厅
第1张
过廊
第1张
第2张
第3张
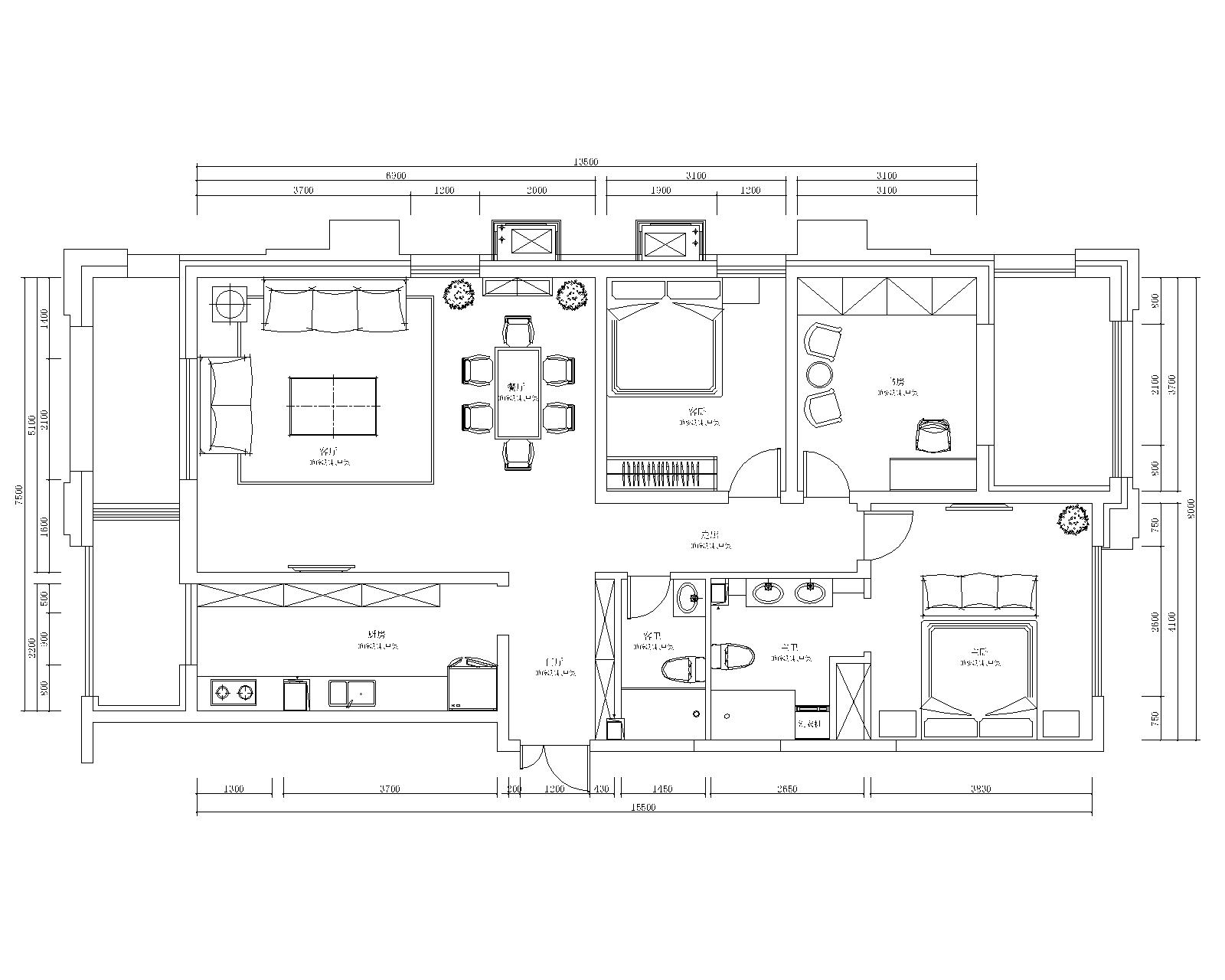
户型图
第1张
  • 案例详情

20180623143456987036.jpg

客厅采用大理石背景墙与浅灰色沙发沙发相结合,采用简单是吊棚,整体突出背景墙,使整个空间更加不抢戏。

20180623143511139935.jpg 20180623143511546704.jpg

餐厅采用与客厅相同的简单吊棚,不复杂繁琐,墙面干净整洁,以实用性为主。

20180623143525448788.jpg

卧室简单的石膏线吊棚不复杂,床头背景采用硬包,使整个空间更具独特性。

20180623143549305746.jpg 20180623143604146884.jpg 20180623143611489273.jpg 20180623143611564117.jpg 20180623143612866406.jpg 20180623143619965145.jpg

案例设计师

林凤装饰设计师

设计师:林凤装饰设计师

从业时间:9年

设计理念:设计源于生活 细节成就品质

预约设计师

算算你家装修多少钱

报名即享丰厚赠品,享半价装修

免费报价
咨询热线:400-656-9909
20190221103704574636.jpg

精品设计案例

20180612134930523248.jpg 服务号二维码.jpg