立即预约 立即预约
免费定制整装家居

免费定制整装家居

一站置家 全程无忧 一省到底
hide.png

当前位置: 首页 > 装修案例效果图 > 旭辉御府

旭辉御府 247平 北欧风格效果图

收藏
案例风格 北欧 案例户型 复式 案例面积 247平米
楼盘名称 旭辉御府 设计师 林凤装饰设计师 案例类型 改善性住宅

设计理念:本案设计为北欧风格,加以中式元素点缀,丰富空间层次。以人为本的设计理念在本案设计中表现的淋淋尽致。主要采用木质材质穿插于各个空间,增强空间的连贯性,冷色调的整体搭配与小面积暖色块碰撞,营造舒适而不失情趣的居住氛围。

客厅
第1张
第2张
餐厅
第1张
卧室
第1张
第2张
厨房
第1张
衣帽间
第1张
门厅
第1张
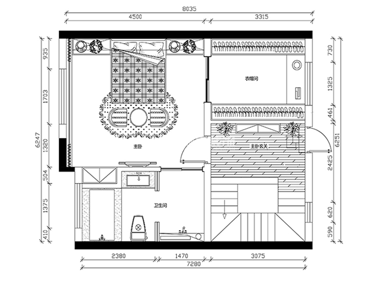
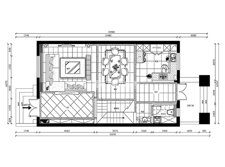
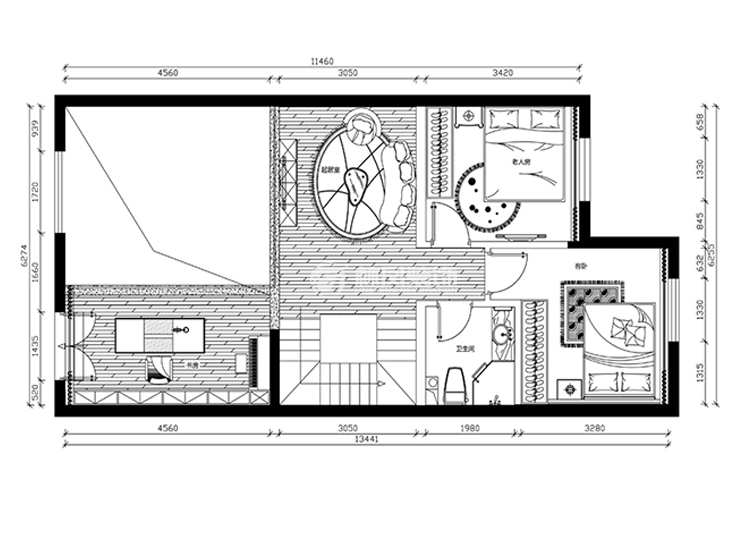
户型图
第1张
第2张
第3张
  • 案例详情

20180627115916582766.jpg 20180627115916374026.jpg

挑空的设计使整个空间通透大气,通顶的原木色电视背景墙凸显设计风格,金属装饰条的点缀为空间增添些许奢华气质。蓝色沙发的呼应与红色窗帘的点缀使整个空间安逸而富有活力。完美诠释了北欧风格的特点。

20180627120126963333.jpg

纯粹、洗练、朴实的北欧风格营造了舒适的用餐环境。

20180627120143159848.jpg 20180627120143288360.jpg 20180627120227423217.jpg

开敞式厨房的设计不仅使整个空间关系连贯、通透,也体现了“风格即生活”的北欧风格理念。

20180627120240275616.jpg 20180627120250725781.jpg 20180627120301165863.jpg 20180627120301168362.jpg 20180627120301836193.jpg

案例设计师

林凤装饰设计师

设计师:林凤装饰设计师

从业时间:4年

设计理念:因人而异的设计才是好设计

预约设计师

算算你家装修多少钱

报名即享丰厚赠品,享半价装修

免费报价
咨询热线:400-656-9909
20190221103704574636.jpg

精品设计案例

20180612134930523248.jpg 服务号二维码.jpg