立即预约 立即预约
免费定制整装家居

免费定制整装家居

一站置家 全程无忧 一省到底
hide.png

当前位置: 首页 > 装修案例效果图 > 碧桂园凤凰城

碧桂园凤凰城 95平 现代简约风格效果图

收藏
案例风格 现代简约 案例户型 二居 案例面积 95平米
楼盘名称 碧桂园凤凰城 设计师 林凤装饰设计师 案例类型 婚房

设计理念:本案为现代风格,通过运用现代造型的线条美感的设计来实现每个空间的合理,简约不简单。

客厅
第1张
第2张
第3张
餐厅
第1张
第2张
第3张
卧室
第1张
第2张
卫生间
第1张
厨房
第1张
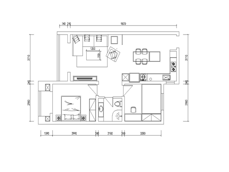
户型图
第1张
  • 案例详情

碧桂园凤凰城-95平-现代风格-客厅 (1).jpg 碧桂园凤凰城-95平-现代风格-客厅 (2).jpg 碧桂园凤凰城-95平-现代风格-客厅 (3).jpg

客厅整体色调采用灰色,灰色地砖及灰色墙面通过明暗度的搭配体现整体装修的设计感,搭配黑色的装饰,客厅背景墙侧采用直线边棚,其他区域搭配简单的角线,客厅整体色调搭配合理,颇有时尚感。

碧桂园凤凰城-95平-现代风格-餐厅 (2).jpg 碧桂园凤凰城-95平-现代风格-餐厅厨房.jpg 碧桂园凤凰城-95平-现代风格-餐厅.jpg

餐厅与厨房相结合,摒弃了传统餐桌的设计方法,采用一个岛台顶替了餐桌功能,使得整体并不宽敞的厨房与餐厅空间巧妙的融入一体,空间更加宽敞。

碧桂园凤凰城-95平-现代风格-主卧.jpg 碧桂园凤凰城-95平-现代风格-次卧.jpg

卧室整体色调偏暗,简单顶角线设计,强调卧室氛围的打造,使得卧室空间看起来既舒适又简单。

碧桂园凤凰城-95平-现代风格-卫生间.jpg

卫生间整体装修相对简单,整体采用灰色墙砖,搭配简易造型的洁具,使得空间与其他空间风格相协调,感觉上时尚大气。

碧桂园凤凰城-95平-现代风格-餐厅厨房.jpg

厨房采用白色瓷砖,搭配深胡桃的橱柜,这种强烈的对比感,使得厨房更加时尚高档,开敞式厨房也增加了与客厅互动的感觉,整体设计不古板,而且空间宽敞明亮。

碧桂园凤凰城-95平-现代风格-平面图.jpg

案例设计师

林凤装饰设计师

设计师:林凤装饰设计师

从业时间:10年

设计理念:合理划分空间,让设计融入生活,营造自然、品味、格调。

预约设计师

算算你家装修多少钱

报名即享丰厚赠品,享半价装修

免费报价
咨询热线:400-656-9909
20190221103704574636.jpg

精品设计案例

20180612134930523248.jpg 服务号二维码.jpg