立即预约 立即预约
免费定制整装家居

免费定制整装家居

一站置家 全程无忧 一省到底
hide.png

当前位置: 首页 > 装修案例效果图 > 铁西金地檀府

铁西金地檀府 123平 现代简约风格效果图

收藏
案例风格 现代简约 案例户型 三居 案例面积 123平米
楼盘名称 铁西金地檀府 设计师 林凤设计师 案例类型 改善性住宅

设计理念:细节决定品质,品质决定生活!

客厅
第1张
餐厅
第1张
卧室
第1张
第2张
第3张
卫生间
第1张
厨房
第1张
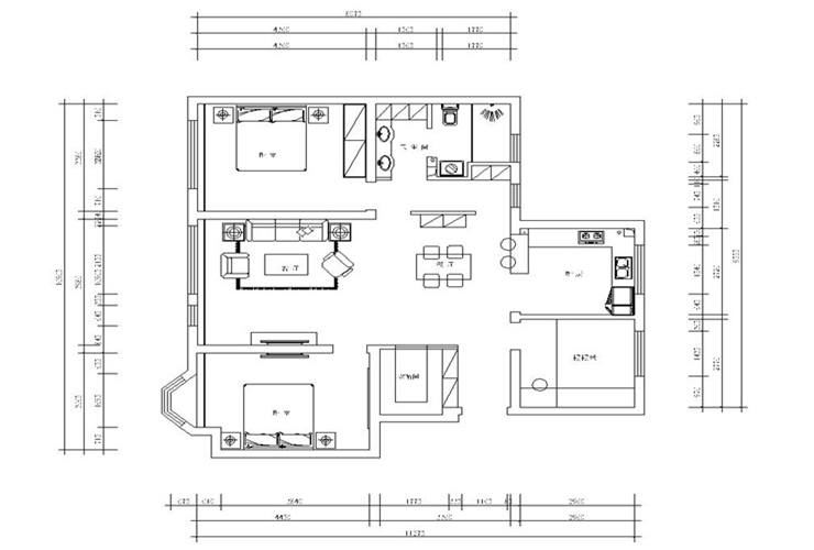
户型图
第1张
  • 案例详情

金地铁西檀府123㎡-现代风格-客厅.jpg

客厅我们采用灰色系的瓷砖地面,电视背景墙理石上墙,使整个空间富有层次感。

金地铁西檀府123㎡-现代风格-餐厅吧台.jpg

由于没有餐厅位,但走廊过宽,可以隔出餐厅位,餐厅背景墙采用生态木,即可以分可做隔断又可装饰

金地铁西檀府123㎡-现代风格-卧室.jpg 金地铁西檀府123㎡-现代风格-卧室1.jpg 金地铁西檀府123㎡-现代风格-榻榻米.jpg

主卧室重点在于灯光,明居暗室,主卧室可采用局部的深紫色,即又神秘又高档。

金地铁西檀府123㎡-现代风格-卫生间.jpg 金地铁西檀府123㎡-现代风格-厨房.jpg

敞开式厨房,使空间变大,使功能区域完美划分,厨房墙砖采用地砖上墙,使空间更具有时代感。

金地铁西檀府123㎡-现代风格-平面图.jpg

案例设计师

林凤设计师

设计师:林凤设计师

从业时间:8年

设计理念:合理划分空间,让设计融入生活,营造自然,品味,格调。

预约设计师

算算你家装修多少钱

报名即享丰厚赠品,享半价装修

免费报价
咨询热线:400-656-9909
20190221103704574636.jpg

精品设计案例

20180612134930523248.jpg 服务号二维码.jpg