立即预约 立即预约
免费定制整装家居

免费定制整装家居

一站置家 全程无忧 一省到底
hide.png

当前位置: 首页 > 装修案例效果图 > 中海和平之门

中海和平之门 90平 北欧风格效果图

收藏
案例风格 北欧 案例户型 二居 案例面积 90平米
楼盘名称 中海和平之门 设计师 林凤装饰设计师 案例类型 婚房

设计理念:以黄色为主题颜色,洁净的黄色变现出一种美丽、文静与洁净,是美好与自由的象征。

客厅
第1张
第2张
第3张
餐厅
第1张
卧室
第1张
第2张
卫生间
第1张
厨房
第1张
第2张
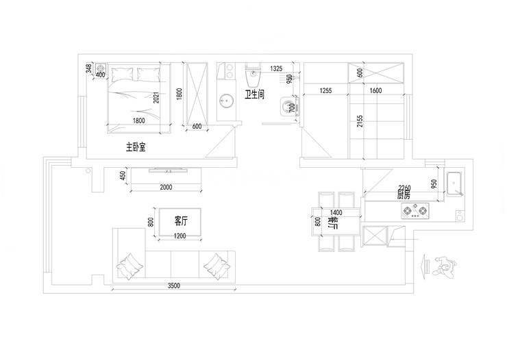
户型图
第1张
  • 案例详情

中海和平之门-90平-北欧风格-客厅.jpg 中海和平之门-90平-北欧风格-客厅2.jpg 中海和平之门-90平-北欧风格-客厅3.jpg

电视背景墙采用条状的壁纸,与沙发挂画交相呼应, 让简洁的空间不失单调,白色电视柜与沙发整体搭配。

中海和平之门-90平-北欧风格-餐厅.jpg

餐厅区域的挂画选择与主题呼应的组合色,使它显得十分轻盈,而且又流露深邃。白色与木色搭配的餐桌让整个空间很有韵味

中海和平之门-90平-北欧风格-次卧室.jpg 中海和平之门-90平-北欧风格-主卧室.jpg

卧室简洁舒适,床头用挂画点缀使整个空间和谐自然,两侧床头柜中心对称和好的利用了空间。

中海和平之门-90平-北欧风格-卫生间.jpg 中海和平之门-90平-北欧风格-厨房.jpg 中海和平之门-90平-北欧风格-厨房1.jpg

浅白色的墙砖和浅色的橱柜和好的搭配,开放柜的设计可以存储电器大大的提高了空间利用率,让整个操作台更加宽敞便于做饭操作。

中海和平之门-90平-北欧风格-平面图.jpg

案例设计师

林凤装饰设计师

设计师:林凤装饰设计师

从业时间:5年

设计理念:生活是创意的来源,创意源于文化,创意源于自己。

预约设计师

算算你家装修多少钱

报名即享丰厚赠品,享半价装修

免费报价
咨询热线:400-656-9909
20190221103704574636.jpg

精品设计案例

20180612134930523248.jpg 服务号二维码.jpg