立即预约 立即预约
免费定制整装家居

免费定制整装家居

一站置家 全程无忧 一省到底
hide.png

当前位置: 首页 > 装修案例效果图 > 自建别墅

自建别墅 360平 港式风格效果图

收藏
案例风格 港式 案例户型 四居 案例面积 360平米
楼盘名称 自建别墅 设计师 林凤设计师 案例类型 婚房

设计理念:该案设计采用港式设计风格,设计潮流多以现代为主,大多色彩冷静、线条简单,简洁而不失时尚。自然的木质色调使居室充满休闲的氛围,是快节奏都市生活的休恬的港湾。

客厅
第1张
第2张
第3张
第4张
餐厅
第1张
卧室
第1张
第2张
卫生间
第1张
厨房
第1张
休闲区
第1张
第2张
门厅
第1张
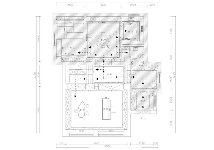
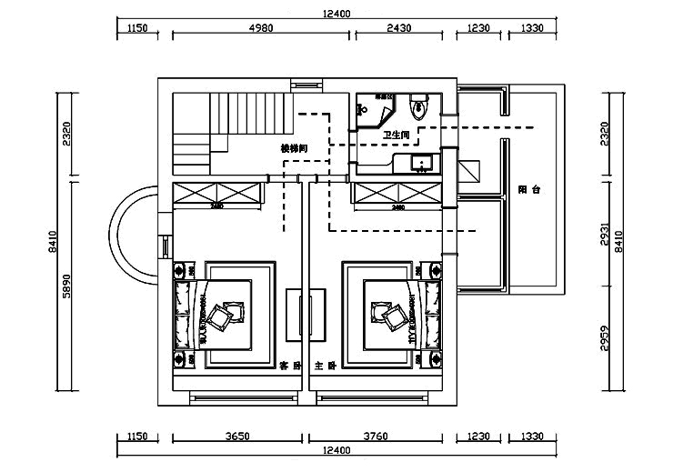
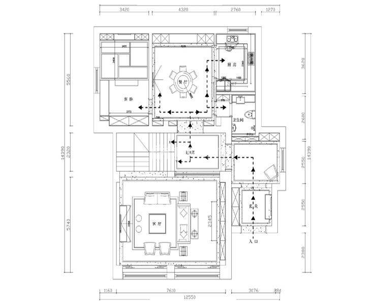
户型图
第1张
第2张
第3张
  • 案例详情

自建别墅-360平 港式风格-客厅2.jpg 自建别墅-360平 港式风格-楼梯间2.jpg 自建别墅-360平 港式风格-楼梯间1.jpg 自建别墅-360平 港式风格-楼梯间3.jpg

在家具配置上,采用棕色皮质沙发,皮质的光泽使家具倍感时尚,具有舒适与美观并存的享受。环绕茶几,像点缀珍珠一般,营造视觉中心,利用黑色具有线条感的落地灯相结合时尚使空间更加具有层次。白色理石纹理与护墙板相结合的背景墙显得稳重大气。在配饰上,则采用暖色为主色调,整体简洁的造型、完美的细节彰显的更非常有品位。

自建别墅-360平 港式风格-餐厅.jpg

本方案餐厅采用圆桌,意为团圆之意,利用棚面上的天井窗,与天空与大自然结合在一起使业主在用餐之余能更好的放松心情。

自建别墅-360平 港式风格-三楼主卧.jpg 自建别墅-360平 港式风格-厨房.jpg

主卧室的色彩延续的客厅的颜色,奇特的床型与大城市里猎奇的心态十分吻合,空间组合舒适,而不失审美情趣,木材的运用也使这些设计具有浓浓的人情味,整体色彩冷静,线条简洁突出了港式风格的特点。

自建别墅-360平 港式风格-主卫.jpg

灰色的墙地砖赋予了空间神秘感,整体色调依旧延续客厅及整体空间,木质的浴室柜及收纳柜大大增加了浴室的储物空间,整体色调内敛大气,挂画的搭配使人能更好的放松心情,

自建别墅-360平 港式风格-厨房.jpg

本方案的厨房采用封闭厨房,整体采用U型橱柜增加厨房的使用空间,利用灰色的墙砖与白色的橱柜空间使厨房空间更加的时尚明亮内敛大气。

自建别墅-360平 港式风格-品茶区1.jpg 自建别墅-360平 港式风格-品茶区2.jpg 自建别墅-360平 港式风格-玄关.jpg 自建别墅-360平 港式风格-二层平面图.jpg 自建别墅-360平 港式风格-一层平面图.jpg 自建别墅-360平-港式风格-三楼平面图.jpg

案例设计师

林凤设计师

设计师:林凤设计师

从业时间:13年

设计理念:设计是用心雕琢的艺术品

预约设计师

算算你家装修多少钱

报名即享丰厚赠品,享半价装修

免费报价
咨询热线:400-656-9909
20190221103704574636.jpg

精品设计案例

20180612134930523248.jpg 服务号二维码.jpg