立即预约 立即预约
免费定制整装家居

免费定制整装家居

一站置家 全程无忧 一省到底
hide.png

当前位置: 首页 > 装修案例效果图 > 金地檀府

金地檀府 110平 欧式风格效果图

收藏
案例风格 欧式 案例户型 二居 案例面积 110平米
楼盘名称 金地檀府 设计师 林凤装饰设计师 案例类型 婚房

设计理念:本案是北欧风格,提起欧式风格,大家普遍想到就是各种雕花石膏线和柱式,但本案采用的是现代理念,更偏向于简约现代的新表现,在年轻人的生活里,现代概念更贴合生活与美学的融合,这也是国内流行起来的现代北欧风格被客户所喜爱的一个方面。在设计的前期设计师也用鸟瞰图的形式,呈现了整体布局,全案考虑的做法,不同于大众设计都是一个点,一个位置的设计,容易造成装修不协调,层次不清晰和让业主迷惑的情况。

客厅
第1张
第2张
餐厅
第1张
卧室
第1张
第2张
卫生间
第1张
厨房
第1张
书房
第1张
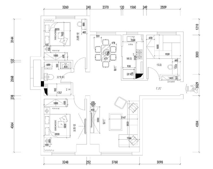
户型图
第1张
  • 案例详情

金地檀府-110平-北欧风格-客厅.jpg 金地檀府-110平-北欧风格-沙发区.jpg

客厅空间在本案里做了空间上的扩展,把阳台部分也融入到了客厅空间里,让客厅在视觉和生活动线方面更加流畅,结合整体设计风格,在棚面上做了内嵌式射灯,让墙面主题更加生动 ,背景墙和沙发墙也是简约的装饰手法,重点体现的是家具风格的自然纹理。

金地檀府-110平-北欧风格-餐厅.jpg

餐厅空间原本是比较常规的格局,本案为了更多的注重功能性,风格是与客厅呼应,在内嵌射灯的同时还有旭光灯带的表现,让原本不是很高的举架得到视野里的提升。

金地檀府-110平-北欧风格-次卧.jpg 金地檀府-110平-北欧风格-主卧.jpg

卧室空间最需要的是安静睡眠,这里不需要浮夸的设计和造型,一盏台灯,一抹温馨的色彩就会让卧室安逸自然。次卧室同样采用简约自然的色调,米色的窗帘让人心绪稳定舒缓神经,可帮助睡眠,缓解压力,在装饰色彩里也有所表现。

金地檀府-110平-北欧风格-卫生间.jpg

本案卫生间是综合一体式结构,在坚固到使用的同时也让空间大幅度的提升,在满足洗漱、洗衣、坐便的同时也兼顾了淋雨功能,这样的设计最大的好处就是空间利用率比较高。

金地檀府-110平-北欧风格-厨房.jpg

厨房空间大多都采用推拉设计,目的是让开关门都不占用空间,本案里结合风格采用了玻璃拉门,让厨房里外都有一定的贯穿性,美观与实用为一体,厨房内要求功能动线合理就好。

金地檀府-110平-北欧风格-书房.jpg

书房空间本案采取的是综合手法,既注重读写工作的功能,同时也加入了地榻,让久坐之后还可以躺下放松,这样劳逸结合也体现了生活创意,地台的另一个优势是在家里有客人的时候,还能暂时用作客卧,也满足了业主的更多需求。

金地檀府-110平-北欧风格-平面.jpg

案例设计师

林凤装饰设计师

设计师:林凤装饰设计师

从业时间:14年

设计理念:设计生活空间 提升品质生活

预约设计师

算算你家装修多少钱

报名即享丰厚赠品,享半价装修

免费报价
咨询热线:400-656-9909
20190221103704574636.jpg

精品设计案例

20180612134930523248.jpg 服务号二维码.jpg