立即预约 立即预约
免费定制整装家居

免费定制整装家居

一站置家 全程无忧 一省到底
hide.png

当前位置: 首页 > 装修案例效果图 > 九颂大院

九颂大院 130平 现代简约风格效果图

收藏
案例风格 现代简约 案例户型 三居 案例面积 130平米
楼盘名称 九颂大院 设计师 林凤装饰设计师 案例类型 婚房

设计理念:本案以现代为主风格,以空间的实用性与艺术性的高度统一,整个色调温馨柔和,主体背景色调为暖白色,以原木色为主体色,点缀高级灰装饰品。使空间生动温馨。

客厅
第1张
餐厅
第1张
卧室
第1张
第2张
第3张
卫生间
第1张
厨房
第1张
第2张
书房
第1张
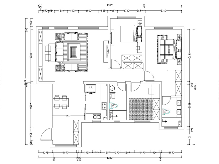
户型图
第1张
  • 案例详情

九颂大院-130平-现代风格-首图.jpg

客厅作为待客区域,装饰简洁明快,宽敞富有温馨感。

九颂大院-130平-现代风格-餐厅.jpg

实木餐桌,桌子与桌椅一般都有弧度,是经典的现代风格。与灯光的搭配更显得家的温馨。

九颂大院-130平-现代风格-卧室1.jpg 九颂大院-130平-现代风格-卧室2.jpg 九颂大院-130平-现代风格-榻榻米..jpg

代家居的卧室布置较为温馨,作为主人的私密空间,主要以功能性和实用舒适为考虑的重点。

九颂大院-130平-现代风格-卫生间.jpg

灰色的大理石铺显得简洁大气,木饰面的梳妆台柜结合狭长的镜面将现代风格的轻奢气质延续于此

九颂大院-130平-现代风格-厨房2.jpg 九颂大院-130平-现代风格-厨房.jpg

房多用仿古面的墙砖、橱具门板喜好用实木门扇或是白色模压门扇仿木纹色。

九颂大院-130平-现代风格-书房.jpg 九颂大院-130平-现代风格-平面图.jpg

案例设计师

林凤装饰设计师

设计师:林凤装饰设计师

从业时间:8年

设计理念:好的设计是实用性,经济性,和艺术性的高度统一。

预约设计师

算算你家装修多少钱

报名即享丰厚赠品,享半价装修

免费报价
咨询热线:400-656-9909
20190221103704574636.jpg

精品设计案例

20180612134930523248.jpg 服务号二维码.jpg