立即预约 立即预约
免费定制整装家居

免费定制整装家居

一站置家 全程无忧 一省到底
hide.png

当前位置: 首页 > 装修案例效果图 > 碧桂园繁华里

碧桂园繁华里 104平 现代简约风格效果图

收藏
案例风格 现代简约 案例户型 二居 案例面积 104平米
楼盘名称 碧桂园繁华里 设计师 郑婷婷 案例类型 改善性住宅

设计理念:简约是一种生活态度,一种在喧嚣城市里让我们的生活空间更自然、更纯净、简洁并且宁静的态度. 生命的轨迹,细腻而蜿蜒。 

客厅
第1张
第2张
第3张
餐厅
第1张
卧室
第1张
第2张
第3张
第4张
第5张
卫生间
第1张
厨房
第1张
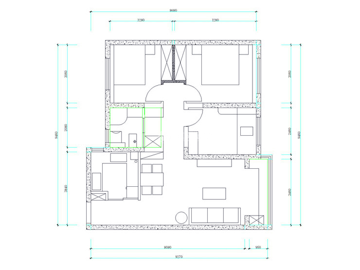
户型图
第1张
  • 案例详情

碧桂园繁华里-104平-现代风格-客餐厅(1).jpg 碧桂园繁华里-104平-现代风格-客餐厅.jpg 碧桂园繁华里-104平-现代风格-客厅.jpg

客厅地面采用通透感极强的抛光地砖,棚面走一圈棚线,简单的硬装配合完美的软装,体现出简约而不简单的感觉。客厅吊灯主色调为金色与下方饰品颜色相呼应,整体空间宽敞明亮。

碧桂园繁华里-104平-现代风格-客餐厅(1).jpg

餐厅位于入户左侧,整体空间宽敞,餐桌利用黑胡桃色,墙面挂画画框利用金色与吊灯颜色相呼应,整体形成出温馨舒适的用餐空间。

碧桂园繁华里-104平-现代风格-次卧.jpg 碧桂园繁华里-104平-现代风格-次卧室(1).jpg 碧桂园繁华里-104平-现代风格-次卧室.jpg 碧桂园繁华里-104平-现代风格-主卧室(1).jpg 碧桂园繁华里-104平-现代风格-主卧室.jpg

主卧以深色调为主,全屋通刷咖色乳胶漆,墙面挂画与吊灯相呼应,打造出温馨舒适的居住空间。

碧桂园繁华里-104平-现代风格-卫生间.jpg 碧桂园繁华里-104平-现代风格-厨房.jpg 碧桂园繁华里-104平-现代风格-户型图.jpg

案例设计师

郑婷婷

设计师:郑婷婷

从业时间:9年

设计理念:用心与住宅对话,交织出住宅中的灵魂所属

预约设计师

算算你家装修多少钱

报名即享丰厚赠品,享半价装修

免费报价
咨询热线:400-656-9909
20190221103704574636.jpg

精品设计案例

20180612134930523248.jpg 服务号二维码.jpg