立即预约 立即预约
免费定制整装家居

免费定制整装家居

一站置家 全程无忧 一省到底
hide.png

当前位置: 首页 > 装修案例效果图 > 金地名悦

金地名悦 89平 混搭风格效果图

收藏
案例风格 混搭 案例户型 二居 案例面积 89平米
楼盘名称 金地名悦 设计师 林凤装饰设计师 案例类型 婚房

设计理念:现代北欧混搭两居室。整体大面积采用灰色调,搭配诱人的祖母绿,使人产生神秘又不失柔和的视觉感受。

客厅
第1张
第2张
第3张
餐厅
第1张
卧室
第1张
第2张
第3张
卫生间
第1张
厨房
第1张
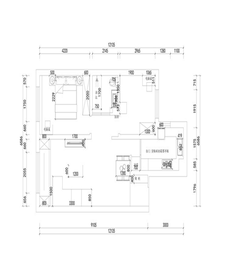
户型图
第1张
  • 案例详情

金地名悦-89平-现代北欧混搭风格-客厅-(2).jpg 金地名悦-89平-现代北欧混搭风格-客厅 (1).jpg 金地名悦-89平-现代北欧混搭风格-客厅-(4).jpg

特别的设计,不同寻常的客厅空间。米黄色的沙发和原木色的地板中和了绿色和灰色偏冷的感觉,使空间看起来温暖又和谐。

金地名悦-89平-现代北欧混搭风格-餐厅.jpg 金地名悦-89平-现代北欧混搭风格-次卧室-(2).jpg 金地名悦-89平-现代北欧混搭风格-次卧室-(1).jpg 金地名悦-89平-现代北欧混搭风格-主卧室.jpg

卧室空间延续客厅空间的暖灰和祖母绿,搭配大地系的窗帘,使空间富有高级感。

金地名悦-89平-现代北欧混搭风格-卫生间.jpg

墙面砖采用下深上浅的样式,使空间颜色对比分明,白色的洁具和原木色的浴室柜,使空间看起来明亮简洁。

金地名悦-89平-现代北欧混搭风格-厨房.jpg

水泥灰的墙砖和下柜使空间显得格外沉重,搭配白漆面的上柜和白色的吊顶,不同材质的融合与碰撞,让空间明净且具有超强的质感。

金地名悦-89平-现代北欧混搭风格-平面图.png

案例设计师

林凤装饰设计师

设计师:林凤装饰设计师

从业时间:11年

设计理念:用艺术的心去生活,用生活的智慧去完善升华艺术!

预约设计师

算算你家装修多少钱

报名即享丰厚赠品,享半价装修

免费报价
咨询热线:400-656-9909
20190221103704574636.jpg

精品设计案例

20180612134930523248.jpg 服务号二维码.jpg