立即预约 立即预约
免费定制整装家居

免费定制整装家居

一站置家 全程无忧 一省到底
hide.png

当前位置: 首页 > 装修案例效果图 > 华润幸福里

华润幸福里 87平 北欧风格效果图

收藏
案例风格 北欧 案例户型 二居 案例面积 87平米
楼盘名称 华润幸福里 设计师 林凤设计师 案例类型 婚房

设计理念:本案北欧风格,整体给人一种简约大气的气息,没有反复的空间布局,每处都格外的干净利落,而且简洁实用。无论是房顶的吊灯,还是脚下的地板,没有琐碎多余的设计,表面光滑柔和,让人感觉温暖而舒适。

客厅
第1张
第2张
第3张
餐厅
第1张
卧室
第1张
卫生间
第1张
厨房
第1张
门厅
第1张
过廊
第1张
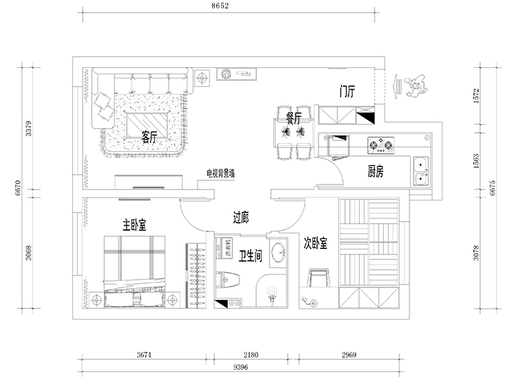
户型图
第1张
  • 案例详情

华润幸福里-87平米-北欧风格-客厅03.jpg 华润幸福里-87平米-北欧风格-客厅01.jpg 华润幸福里-87平米-北欧风格-客厅02.jpg

客厅采用简洁的线条突出了整体的雅致,然而简洁并不是简单。背景墙三个连续的拱形造型、中间留白处配以白色纹理硅藻泥,生动、活泼同时立体感十足。两侧的壁灯设计,让人感觉温馨、舒适。

华润幸福里-87平米-北欧风格-餐厅.jpg

餐厅在整套户型中有独立的区域,抽象的挂画、俏皮的餐吊灯,木质的餐桌,温馨感十足。

华润幸福里-87平米-北欧风格-卧室.jpg

书房空间不大,设计了榻榻米,门板采用了现代的白色门板,墙面深色乳胶漆调色,与榻榻米形成对比,现代感强烈。

华润幸福里-87平米-北欧风格-卫生间.jpg

女主人是个十分爱干净的女人,有点强迫症的她不容得一点点凌乱的存在,不允许一点点瑕疵,因此简洁清新的色调就是这里的首选,全部白色的卫浴更能诠释一个整洁女人的内心世界。。

华润幸福里-87平米-北欧风格-厨房.jpg

厨房的设计更注重功能性,女主喜欢在家做饭,所以大大的操作台满足了功能性的需要。颜色上,白色的烤漆橱柜搭配灰色系的墙砖,耐用的同时效果也更加的高档。

华润幸福里-87平米-北欧风格-门厅.jpg 华润幸福里-87平米-北欧风格-过廊.jpg 华润幸福里-87平米-北欧风格-平面布置图.jpg

案例设计师

林凤设计师

设计师:林凤设计师

从业时间:5年

设计理念:设计不但要有整体性,更要突出实用性和舒适度,注重人体工程学。简单、实用、美观才是王道!

预约设计师

算算你家装修多少钱

报名即享丰厚赠品,享半价装修

免费报价
咨询热线:400-656-9909
20190221103704574636.jpg

精品设计案例

20180612134930523248.jpg 服务号二维码.jpg