立即预约 立即预约
免费定制整装家居

免费定制整装家居

一站置家 全程无忧 一省到底
hide.png

当前位置: 首页 > 装修案例效果图 > 浦江御景湾

浦江御景湾 82平 现代简约风格效果图

收藏
案例风格 现代简约 案例户型 二居 案例面积 82平米
楼盘名称 浦江御景湾 设计师 林凤装饰设计师 案例类型 改善性住宅

设计理念:本案是现代简约风格,现代简约风格主要表现在空间开敞、内外通透,在空间平面设计中追求不受承重墙的限制自由。所以在设计现代简约的时候,很多时候都会考虑到墙面、地面、顶棚等的协调性。

客厅
第1张
餐厅
第1张
第2张
卧室
第1张
卫生间
第1张
厨房
第1张
第2张
门厅
第1张
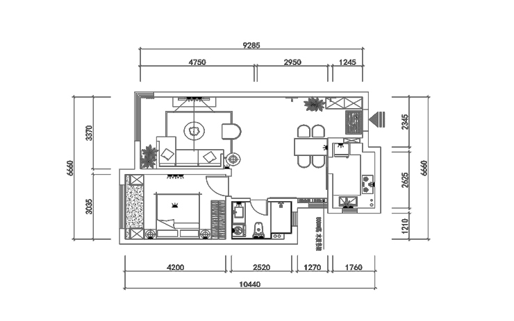
户型图
第1张
  • 案例详情

浦江御景湾-82平-简约风格-客厅2.jpg

本案的客厅深灰色布艺沙发,搭配地板纹理瓷砖,与茶几电视柜的原木色形成呼应。

浦江御景湾-82平-简约风格-餐厅.jpg 浦江御景湾-82平-简约风格-餐厅2.jpg

本案的餐厅有一个单独的区域,业主本身是比较好客,所以餐厅区域做的很大,可容纳很多人,在颜色上采用了白色理石。

浦江御景湾-82平-简约风格-主卧室.jpg

本案的卧室,业主长期一个人入住,卧室不需要太多衣柜类的物体,而且灰色与原木色是属于轻奢的典型,说明业主生活品质很高。

浦江御景湾-82平-简约风格-卫生间.jpg

本案的卫生间采用了灰度彩砖,不同纹理不同花片,让本身阴凉的卫生间显得非同凡响。

浦江御景湾-82平-简约风格-厨房.jpg 浦江御景湾-82平-简约风格-厨房2.jpg

本案的厨房是原木色橱柜与灰色台面,在搭配“冰凉”的厨具,最引人入胜的是厨房的谷仓门,厨房内外相互搭配,而且使用了整个空间的一个跳跃色,也是整个空间的点睛之笔。

浦江御景湾-82平-简约风格-玄关.jpg 浦江御景湾-82平-简约风格-平面布局图.jpg

案例设计师

林凤装饰设计师

设计师:林凤装饰设计师

从业时间:5年

设计理念:设计师不但要引领潮流、还要融入生活,设计的灵感出自于生活但又高于生活的一种产物。如果设计太过脱离生活就不会被消费者接受,不被接受的话 ,这就是一个失败品也没有任何价值意义 , 用最省钱的办法设计出最适合客户的居室 。

预约设计师

算算你家装修多少钱

报名即享丰厚赠品,享半价装修

免费报价
咨询热线:400-656-9909
20190221103704574636.jpg

精品设计案例

20180612134930523248.jpg 服务号二维码.jpg