立即预约 立即预约
免费定制整装家居

免费定制整装家居

一站置家 全程无忧 一省到底
hide.png

当前位置: 首页 > 装修案例效果图 > 万科四季花园

万科四季花园 96平 北欧风格效果图

收藏
案例风格 北欧 案例户型 二居 案例面积 96平米
楼盘名称 万科四季花园 设计师 林凤装饰设计师 案例类型 婚房

设计理念:北欧风格讲究注重功能、追求理性,简洁明朗的颜色,淡雅清爽的自然材质,线条流畅,不事雕琢。。

客厅
第1张
第2张
第3张
餐厅
第1张
卧室
第1张
卫生间
第1张
厨房
第1张
过廊
第1张
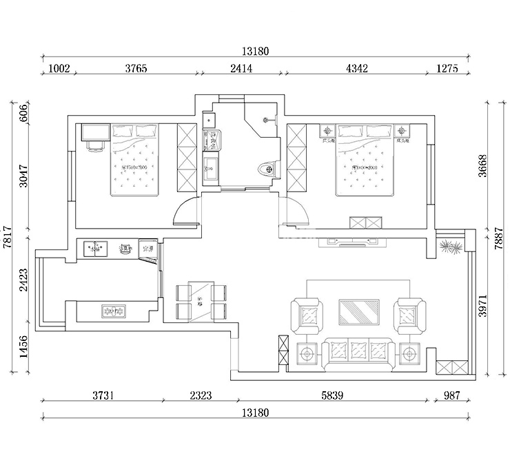
户型图
第1张
  • 案例详情

万科四季花城-95平-北欧风格-客厅2.jpg 万科四季花城-95平-北欧风格-客厅1.jpg 万科四季花城-95平-北欧风格-客厅3.jpg

布置简单温馨,客厅是以米灰的沙发和木制家具为主,展现一个干净温馨的氛围。注重质感。

万科四季花城-95平-北欧风格-餐厅.jpg

用餐区的设计,无论是家具上,整体上都多用接近自然的原木风格,搭配黄色跳舞兰装饰花营造出整体氛围。

万科四季花城-95平-北欧风格-主卧室.jpg

卧室的设计,是用原木色结合白色显得更加干净,舒适。

万科四季花城-95平-北欧风格-卫生间.jpg

卫生间的设计,深色的墙砖与木质的洗手台显得更加干净有质感。

万科四季花城-95平-北欧风格-厨房.jpg

厨房整体色调简约干净。布纹墙砖 ab版上下柜搭配,营造出整体干净线条。

万科四季花城-95平-北欧风格-过廊.jpg 万科四季花城-95平-北欧风格-平面图.jpg

案例设计师

林凤装饰设计师

设计师:林凤装饰设计师

从业时间:6年

设计理念:设计源于生活,生活因设计而改变。

预约设计师

算算你家装修多少钱

报名即享丰厚赠品,享半价装修

免费报价
咨询热线:400-656-9909
20190221103704574636.jpg

精品设计案例

20180612134930523248.jpg 服务号二维码.jpg