立即预约 立即预约
免费定制整装家居

免费定制整装家居

一站置家 全程无忧 一省到底
hide.png

当前位置: 首页 > 装修案例效果图 > 格林玫瑰湾

格林玫瑰湾 130平 现代简约风格效果图

收藏
案例风格 现代简约 案例户型 二居 案例面积 130平米
楼盘名称 格林玫瑰湾 设计师 李雪 案例类型 改善性住宅

设计理念:本案例定位为现代风格,为了整体空间大小,家具主要采用深色实木家具和白色的柜体和黄色沙发搭配,并在空间上考虑到户型的情况和业主想法,重点在实用性和储藏空间下了很大的功夫。

客厅
第1张
第2张
第3张
餐厅
第1张
卧室
第1张
第2张
第3张
卫生间
第1张
第2张
厨房
第1张
门厅
第1张
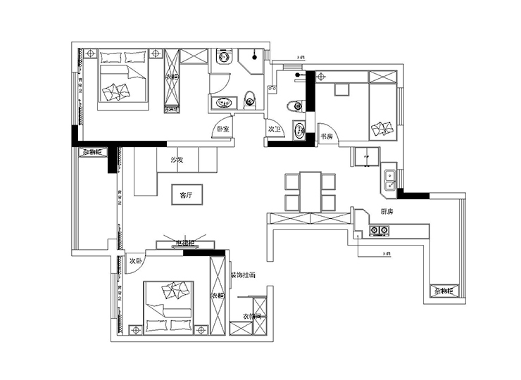
户型图
第1张
  • 案例详情

格林玫瑰湾-130平-现代风格-客卫.jpg 格林玫瑰湾-130平-现代风格-客厅01.jpg 格林玫瑰湾-130平-现代风格-客厅02.jpg

客厅我们采用灰棕色系的措纹地板砖,电视背景利用简单的线条勾勒一下与沙发背景遥相呼应,棚顶直接用成品石膏线进行归方,这样墙面与天棚交相辉映,从简至繁。

格林玫瑰湾-130平-现代风格-餐厅01.jpg

餐厅空间不是很大,这里一定要注意餐桌尺寸,利用好空间位置合理应用布局。

格林玫瑰湾-130平-现代风格-次卧室.jpg 格林玫瑰湾-130平-现代风格-榻榻米.jpg 格林玫瑰湾-130平-现代风格-主卧室.jpg

客卧室空间尺寸小点,我们将客卧室改造成榻榻米房间,客户满足居住,学习与亲属到访时的居住要求。

格林玫瑰湾-130平-现代风格-主卫.jpg 格林玫瑰湾-130平-现代风格-主卫-(2).jpg

卫生间内部结构比较合理,我们利用仿古系列瓷砖来装饰卫生间空间大气又上档次。

格林玫瑰湾-130平-现代风格-厨房01.jpg

厨房的面积也不是很大,因此厨房的设计除了效果以外就是储物空间了,但凡有能做柜子的地方,在不影响效果的前提下,设计师都为房主做上了储物柜,遇到窗口不能放吊柜的地方,就利用隔板代替。

格林玫瑰湾-130平-现代风格-门厅.jpg 格林玫瑰湾-130平-现代风格-平面图.jpg

案例设计师

李雪

设计师:李雪

从业时间:6年

设计理念:设计源于生活,而又升华于生活。

预约设计师

算算你家装修多少钱

报名即享丰厚赠品,享半价装修

免费报价
咨询热线:400-656-9909
20190221103704574636.jpg

精品设计案例

20180612134930523248.jpg 服务号二维码.jpg