立即预约 立即预约
免费定制整装家居

免费定制整装家居

一站置家 全程无忧 一省到底
hide.png

当前位置: 首页 > 装修案例效果图 > 碧桂园繁华里

碧桂园繁华里 83平 北欧风格效果图

收藏
案例风格 北欧 案例户型 二居 案例面积 83平米
楼盘名称 碧桂园繁华里 设计师 林凤设计师 案例类型 婚房

设计理念:北欧风格近两年是小户型装修风格的主流,颜色鲜明,特别适合年轻人的追捧,本套风格颜色搭配主要是温馨浪漫色彩为主。

客厅
第1张
第2张
第3张
第4张
第5张
第6张
卧室
第1张
卫生间
第1张
厨房
第1张
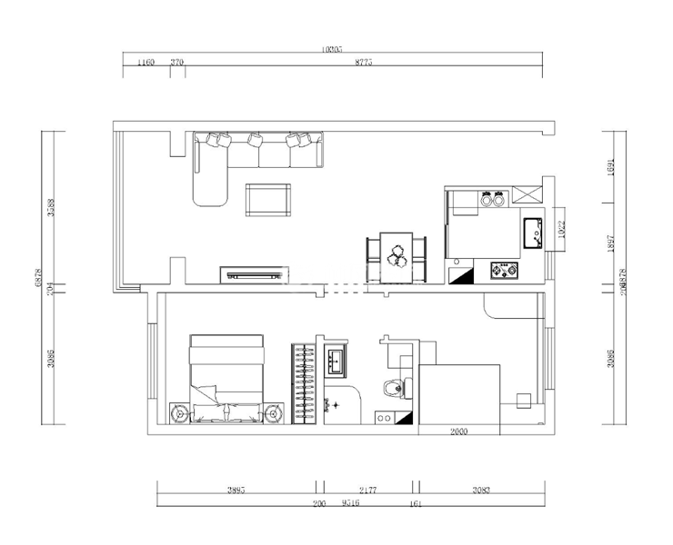
户型图
第1张
  • 案例详情

碧桂园繁华里-83平- 北欧风格-客厅 (2).jpg 碧桂园繁华里-83平- 北欧风格-客厅 (1).jpg 碧桂园繁华里-83平- 北欧风格-客厅 (3).jpg 碧桂园繁华里-83平- 北欧风格-客厅 (4).jpg 碧桂园繁华里-83平- 北欧风格-客厅 (5).jpg 碧桂园繁华里-83平- 北欧风格-客厅 (6).jpg

米黄色的沙发,彩色靠垫配上木色和白色结合的小茶几,简单,大方,实用,沙发背景是靠一组照片墙的形式来呈现的,看起来,自然,亲切。符合家具的配搭。

碧桂园繁华里-83平- 北欧风格-卧室.jpg

卧室颜色清淡,白天感觉躺在床上沐浴阳光一样,舒适度很强,木色搭配北欧风格,浅浅的灰色与原木色的结合,温馨浪漫上档次

碧桂园繁华里-83平- 北欧风格-卫生间.jpg

墙面花片错落分开,感觉很浪漫,整体灰色的瓷砖,搭配着白色的洁具,很洁净,符合北欧风格简单的元素。

碧桂园繁华里-83平- 北欧风格-厨房.jpg

厨房装修,橱柜考虑的是白色的门板,淡淡的颜色配合墙面灰色的墙砖,立体感很强。空间感变大。

碧桂园繁华里-83平- 北欧风格-平面图.png

案例设计师

林凤设计师

设计师:林凤设计师

从业时间:7年

设计理念:合理划分空间,让设计融入生活。

预约设计师

算算你家装修多少钱

报名即享丰厚赠品,享半价装修

免费报价
咨询热线:400-656-9909
20190221103704574636.jpg

精品设计案例

20180612134930523248.jpg 服务号二维码.jpg