立即预约 立即预约
免费定制整装家居

免费定制整装家居

一站置家 全程无忧 一省到底
hide.png

当前位置: 首页 > 装修案例效果图 > 金辉优步湖畔

金辉优步湖畔 100平 北欧风格效果图

收藏
案例风格 北欧 案例户型 三居 案例面积 100平米
楼盘名称 金辉优步湖畔 设计师 林凤装饰设计师 案例类型 婚房

设计理念:本案是北欧风格,以干净简洁的灰色为主色调,以简洁的质感和大面积彩色做互补,提高了空间感。

客厅
第1张
第2张
餐厅
第1张
第2张
卧室
第1张
第2张
卫生间
第1张
厨房
第1张
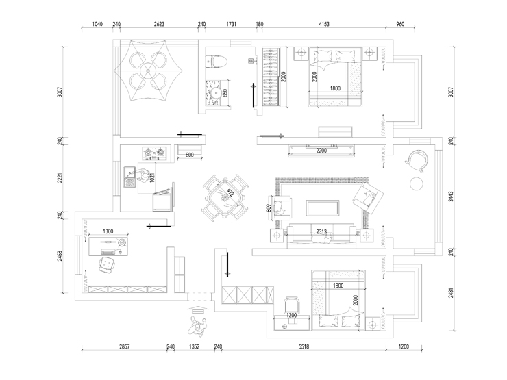
户型图
第1张
  • 案例详情

金辉优步湖畔-100平-北欧风格-客厅1.jpg 金辉优步湖畔-100平-北欧风格-客厅2.jpg

客厅的电视背景墙与沙发背景墙采用了纯白石膏广线做造型框的形式点缀整个客厅空间墙面,灰色的主体墙面与同一平面上的白色石膏广线产生明暗对比。使得同一平面在色彩与空间上产生差异,拉伸整个空间的视觉效果。

金辉优步湖畔-100平-北欧风格-餐厅1.jpg 金辉优步湖畔-100平-北欧风格-餐厅2.jpg

餐桌采用了原木质感的方形四人餐桌,灰白色的绒布餐椅搭配木质餐桌 给人质朴纯洁的感觉。

金辉优步湖畔-100平-北欧风格-次卧室.jpg 金辉优步湖畔-100平-北欧风格-主卧室.jpg

整体墙面纯白色乳胶漆,棚顶石膏板平棚黑漆抽缝,抬高整个空间的视觉效果,深胡桃色家具搭配白色与灰色床品布艺,提高了整个卧室的质感,

金辉优步湖畔-100平-北欧风格-卫生间.jpg

整体采用了深灰色瓷砖,搭配白色洁具与深色浴室柜,坐便背景做了黑色铁艺置物架,满足了卫生间的储物功能。

金辉优步湖畔-100平-北欧风格-厨房.jpg

整体瓷砖选用了白色理石纹理横向铺贴的方式,橱柜选用了金色亮光材质,与纯白色台面对比明显,整个空间给人一种干净整洁的感觉。卧室墙面选用了白色乳胶漆与深色床头柜达成色彩上的统一和谐,增加了视觉的冲击力。

金辉优步湖畔-100平-北欧风格-户型图.jpg

案例设计师

林凤装饰设计师

设计师:林凤装饰设计师

从业时间:8年

设计理念:在确保满足使用功能的前提下,达到审美效果的最大化。

预约设计师

算算你家装修多少钱

报名即享丰厚赠品,享半价装修

免费报价
咨询热线:400-656-9909
20190221103704574636.jpg

精品设计案例

20180612134930523248.jpg 服务号二维码.jpg